National Park Service
×
Copyright Information:
NATIONAL REGISTER DIGITAL ASSETS
DOWNLOAD THIS PDF
DOWNLOAD THIS PDF
HIDE NATIONAL REGISTER ASSETS
Copyright
ASSET METADATA
Title:
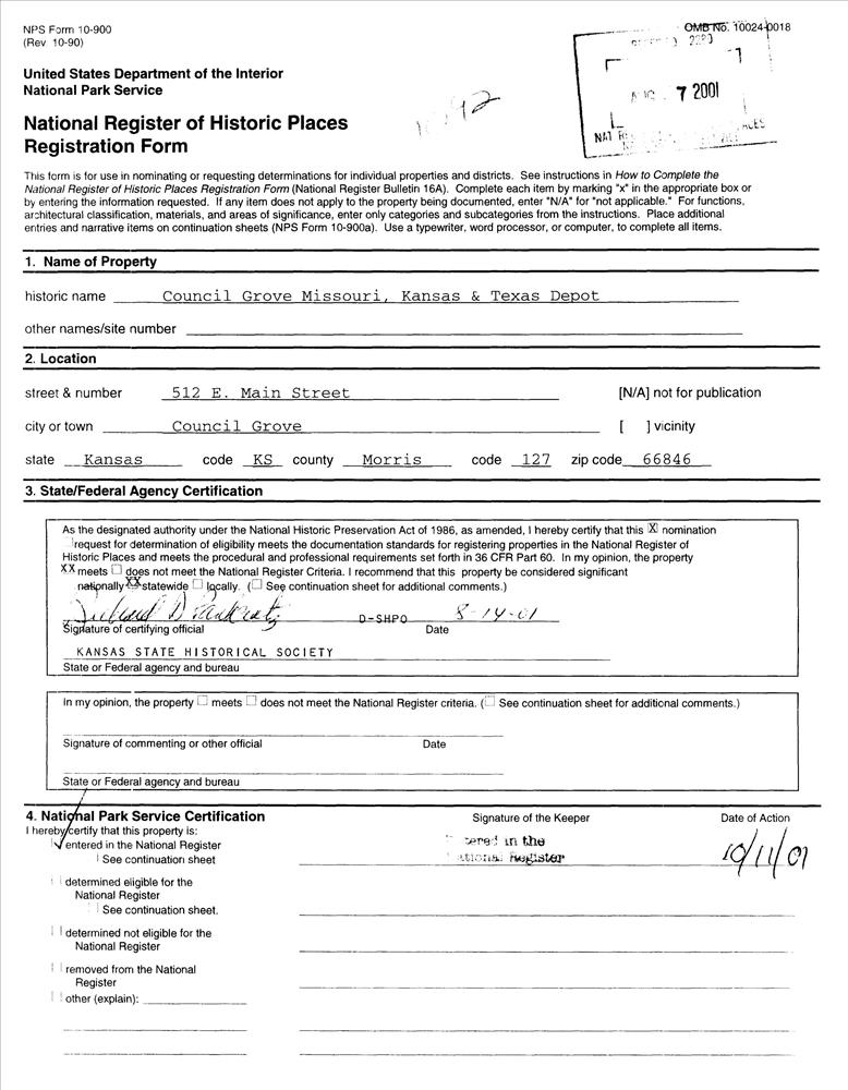
Council Grove Missouri, Kansas and Texas Depot
National Register Information System ID:
01001092
Multiple Listing:
Railroad Resources of Kansas MPS
Applicable Criteria:
EVENT
ARCHITECTURE/ENGINEERING
Architectural Styles:
LATE VICTORIAN
Architects:
Missouri, Kansas & Texas RR Co.
Areas Of Significance:
TRANSPORTATION
ARCHITECTURE
Periods Of Significance:
1875-1899
1900-1924
1925-1949
1950-1974
Significant Years:
1894
Resource Type:
BUILDING
Related Collections:
National Register of Historic Places Collection
Resource Format:
pdf
File Size (bytes):
906682
Date Published:
10/11/2001
Parks:
National Register of Historic Places
Locations:
State: Kansas
County: Morris County
Council Grove ; 512 E. Main St.
Rating:
Categories:
Historic
Asset ID:
44992461-102f-42aa-82d2-e0ccf275cccb
Related Portals:
NPGallery Main Search
HIDE METADATA
Copyright