National Park Service
×
Copyright Information:
NATIONAL REGISTER DIGITAL ASSETS
DOWNLOAD THIS PDF
DOWNLOAD THIS PDF
HIDE NATIONAL REGISTER ASSETS
Copyright
ASSET METADATA
Title:
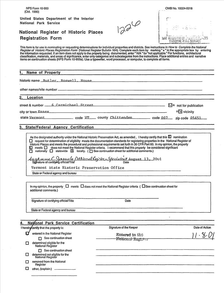
Butler, Roswell, House
National Register Information System ID:
01001226
Applicable Criteria:
ARCHITECTURE/ENGINEERING
Architectural Styles:
FEDERAL
Areas Of Significance:
ARCHITECTURE
Periods Of Significance:
1800-1824
1825-1849
1850-1874
1875-1899
1900-1924
1925-1949
Resource Type:
BUILDING
Related Collections:
National Register of Historic Places Collection
Resource Format:
pdf
File Size (bytes):
581578
Date Published:
11/8/2001
Parks:
National Register of Historic Places
Locations:
State: Vermont
County: Chittenden County
Essex ; 6 Carmichael St.
Rating:
Categories:
Historic
Asset ID:
2c49e6ad-35aa-4093-8f44-fc7f1270bf6a
Related Portals:
NPGallery Main Search
HIDE METADATA
Copyright