National Park Service
×
Copyright Information:
NATIONAL REGISTER DIGITAL ASSETS
DOWNLOAD THIS PDF
DOWNLOAD THIS PDF
HIDE NATIONAL REGISTER ASSETS
Copyright
ASSET METADATA
Title:
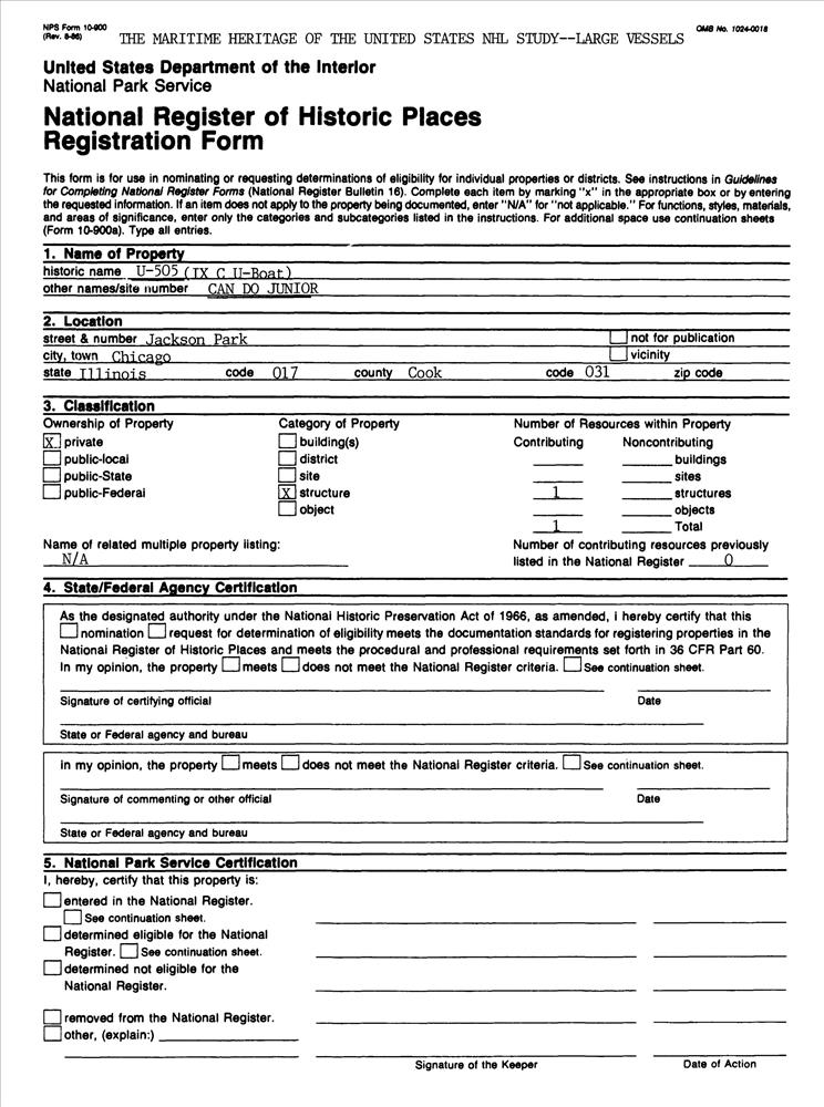
U-505 (IX C U-Boat)
National Historic Landmark System ID:
89001231
Applicable Criteria:
EVENT
ARCHITECTURE/ENGINEERING
Architects:
Deutsches Werft Shipyard
Areas Of Significance:
MILITARY
ENGINEERING
MARITIME HISTORY
Periods Of Significance:
1925-1949
Significant Years:
1940
1941
1944
Resource Type:
STRUCTURE
Keywords:
deutsches werft shipyard ; 1940 ; 1941 ; 1944
Note:
Jackson Park
Related Collections:
National Register of Historic Places Collection
Resource Format:
pdf
File Size (bytes):
643806
Date Published:
6/29/1989
Parks:
National Register of Historic Places
Locations:
State: Illinois
County: Cook County
Chicago ; Jackson Park
Rating:
Categories:
Historic
Asset ID:
02db43df-ce7d-4fc3-b6b7-4765eb0dc8a7
Related Portals:
NPGallery Main Search
HIDE METADATA
Copyright