Yosemite Lodge Food and Bev.
Select Item below to DOWNLOAD - Once item is selected, right click and choose 'save as'
ef728910-4c6c-41ef-b065-84d87d3b3051
Yosemite Lodge Food and Bev.
Yosemite Lodge Food and Bev.
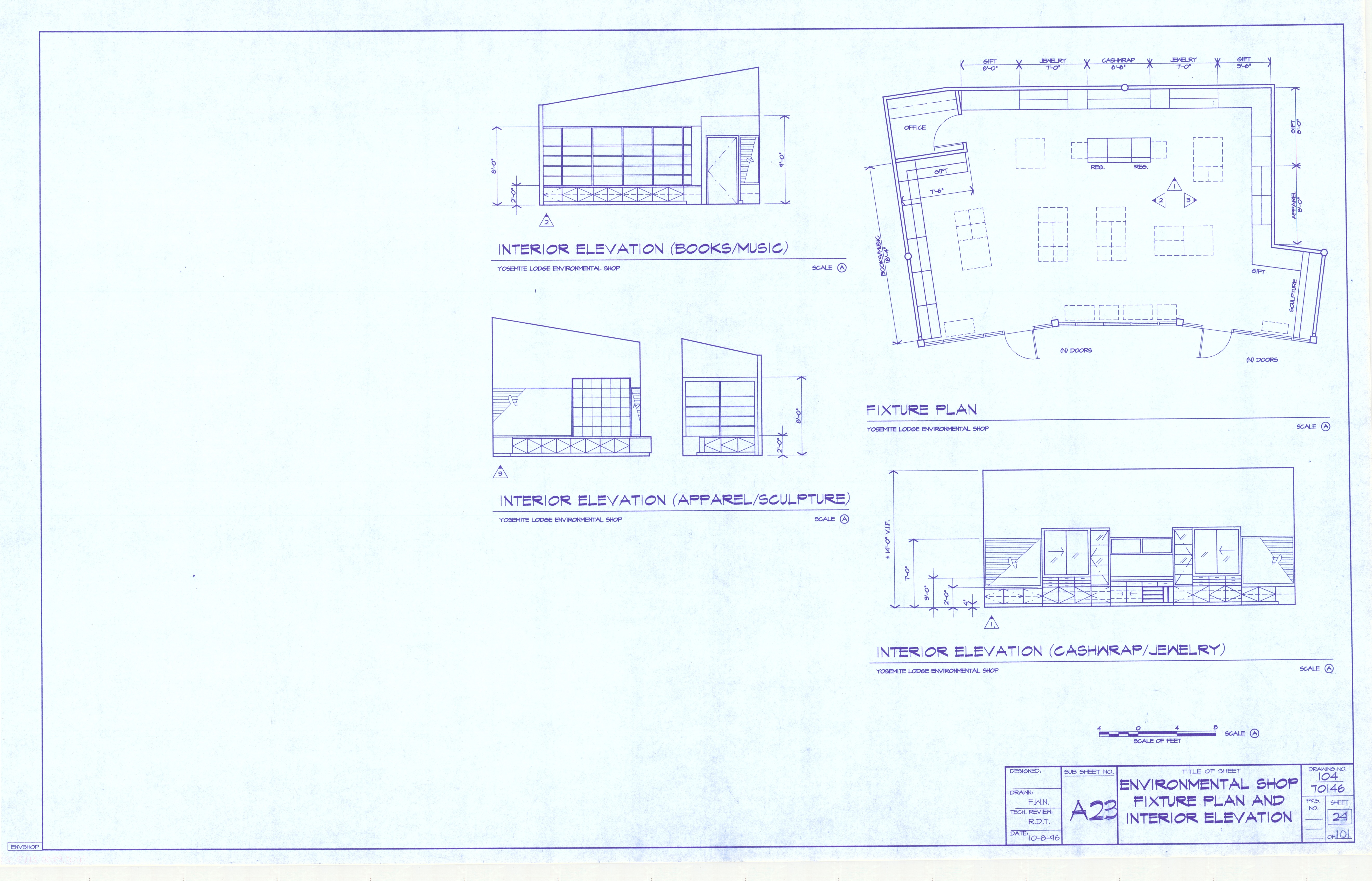
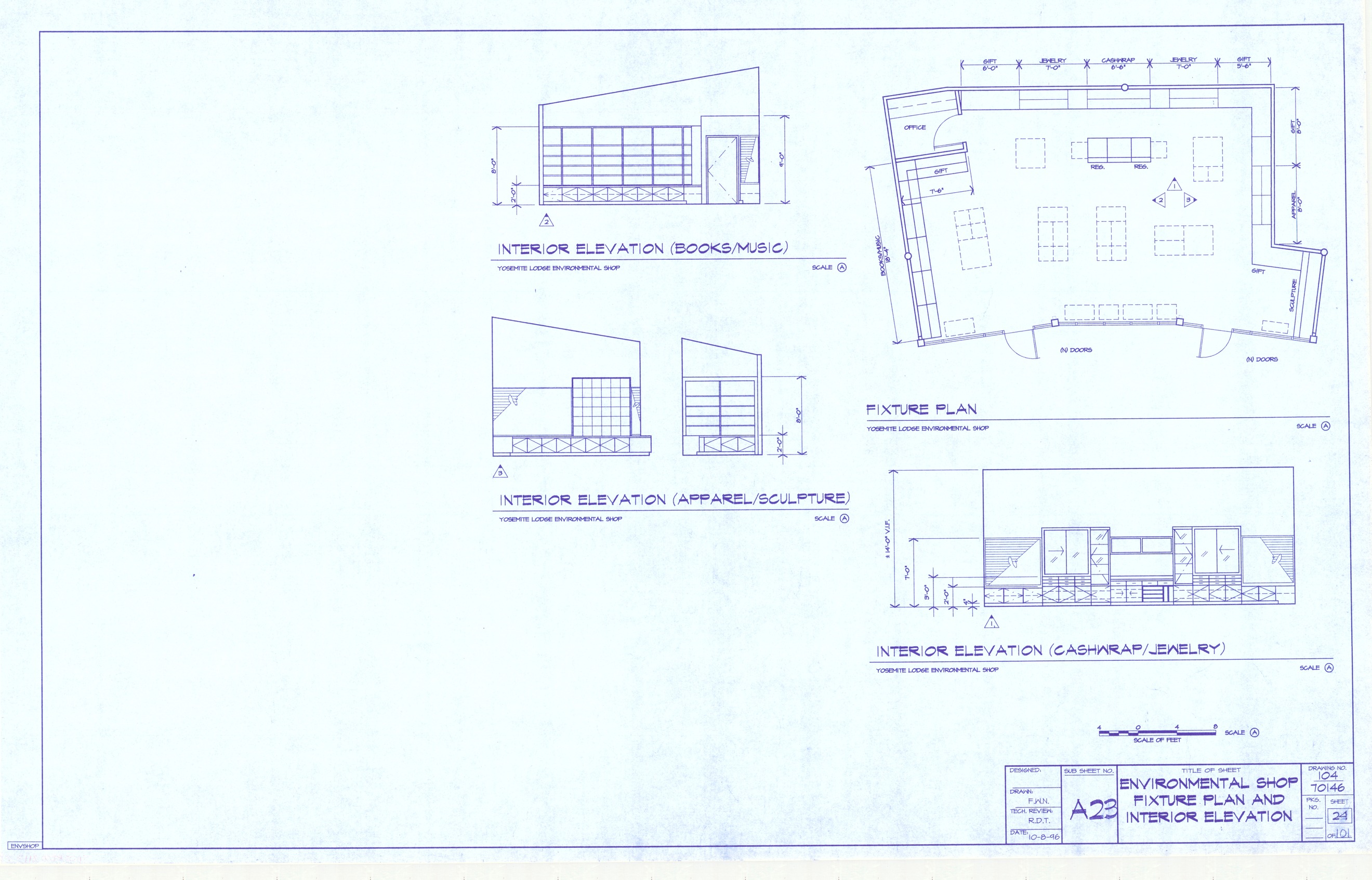
Environmental Shop Floor Plan
Item Number: YOSEAR002117.024, AlternateId: 104/70146
Contact Yosemite National Park for more copyright information and use
Public domain:This digital asset is in the public domain. When using this asset for any purpose, including online, credit:'Courtesy U.S. National Parks'
104/70146, (YOSE TIC Number)
Image
Yosemite National Park, Code: YOSE
Yosemite National Park, California
Yosemite National Park, California
Latitude: 37.8399200439453, Longitude: -119.540397644043

1996
01/01/1996 - 12/30/1996
Type:diazotype paper, Dimensions: 24 x 36, Condition: good
YOSE Location: E4 DR20 F3of4 (5-A-013 Yosemite Lodge 1990-1999 - Food & Beverage pt. 1)
Public Can View
Esherick, Homsey, Dodge & Davis
Person: Archivist
Organization: US National Park Service
Address: Yosemite National Park Archives, PO Box 700-W, El Portal, CA 95318
Email: yose_archives@nps.gov

Monday, July 24, 2023 7:14:06 PM
Monday, July 24, 2023 7:14:06 PM
YOSEAR002117.024.tif
tif
859.5 MB
Historic , Map