Awning - Yosemite Village Visitor Center
Select Item below to DOWNLOAD - Once item is selected, right click and choose 'save as'
2c097ec4-cce5-4dbe-83b3-737740be9a74
Awning - Yosemite Village Visitor Center
Awning - Yosemite Village Visitor Center
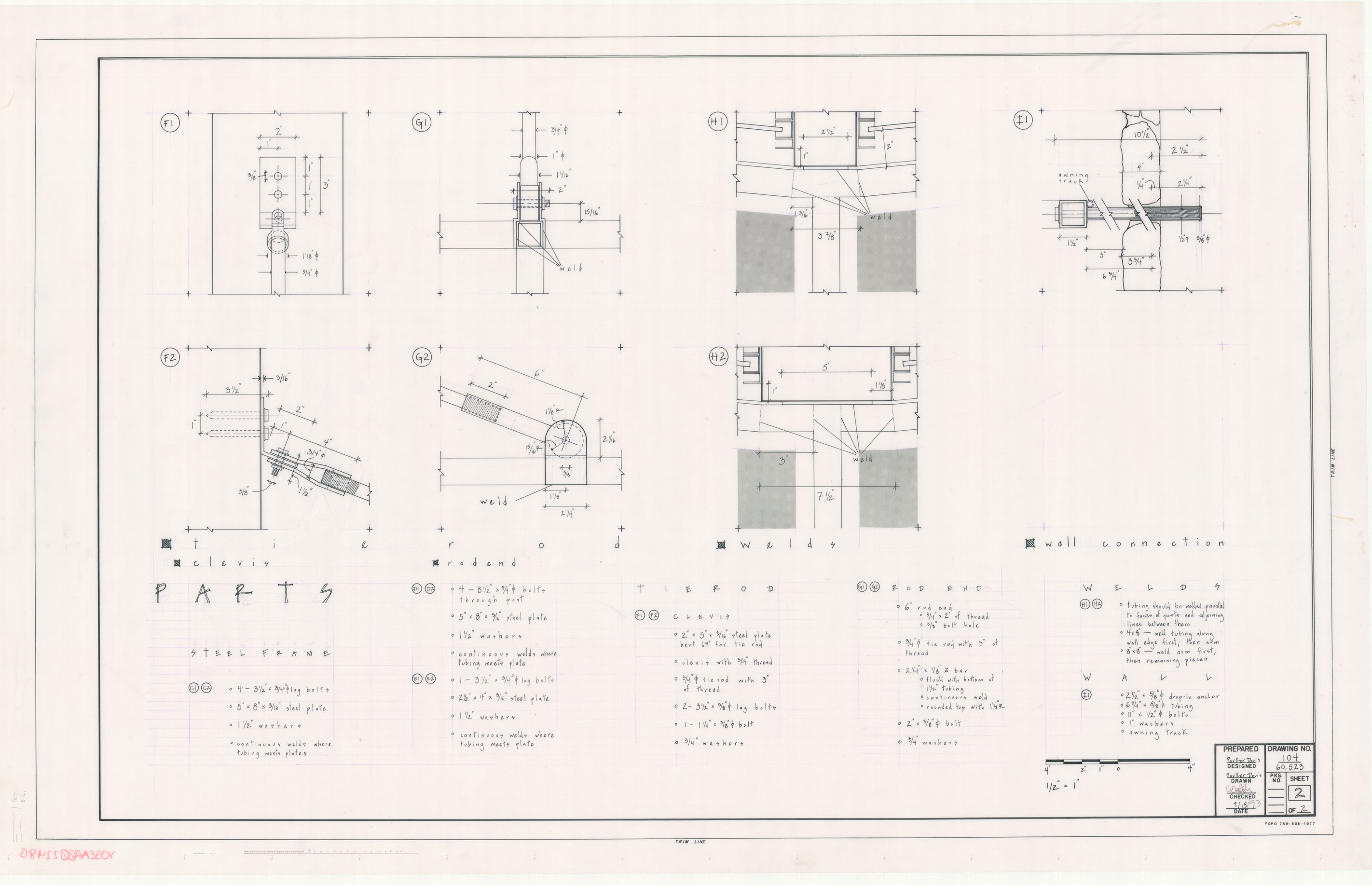
Parts of steel frame, wall connectors, materials list
Item Number: YOSEAR002248B, AlternateId: 104/60523
Contact Yosemite National Park for more copyright information and use
Public domain:This digital asset is in the public domain. When using this asset for any purpose, including online, credit:'Courtesy U.S. National Parks'
104/60523, (YOSE TIC Number)
Image
Yosemite National Park, Code: YOSE
Yosemite National Park, California
Yosemite National Park, California
Latitude: 37.8399200439453, Longitude: -119.540397644043

1993
01/01/1993 - 12/30/1993
Type:polyester overlay, Dimensions: 22 x 36, Condition: good
YOSE Location: E5 DR4 Visitor Center
Public Can View
Parker Davis
Person: Archivist
Organization: US National Park Service
Address: Yosemite National Park Archives, PO Box 700-W, El Portal, CA 95318
Email: yose_archives@nps.gov

Monday, July 3, 2023 7:41:59 PM
Monday, July 3, 2023 7:41:59 PM
YOSEAR002248B.tif
tif
1003.0 MB
Historic , Map