National Park Service
×
Copyright Information:
NATIONAL REGISTER DIGITAL ASSETS
DOWNLOAD THIS PDF
DOWNLOAD THIS PDF
HIDE NATIONAL REGISTER ASSETS
Copyright
ASSET METADATA
Title:
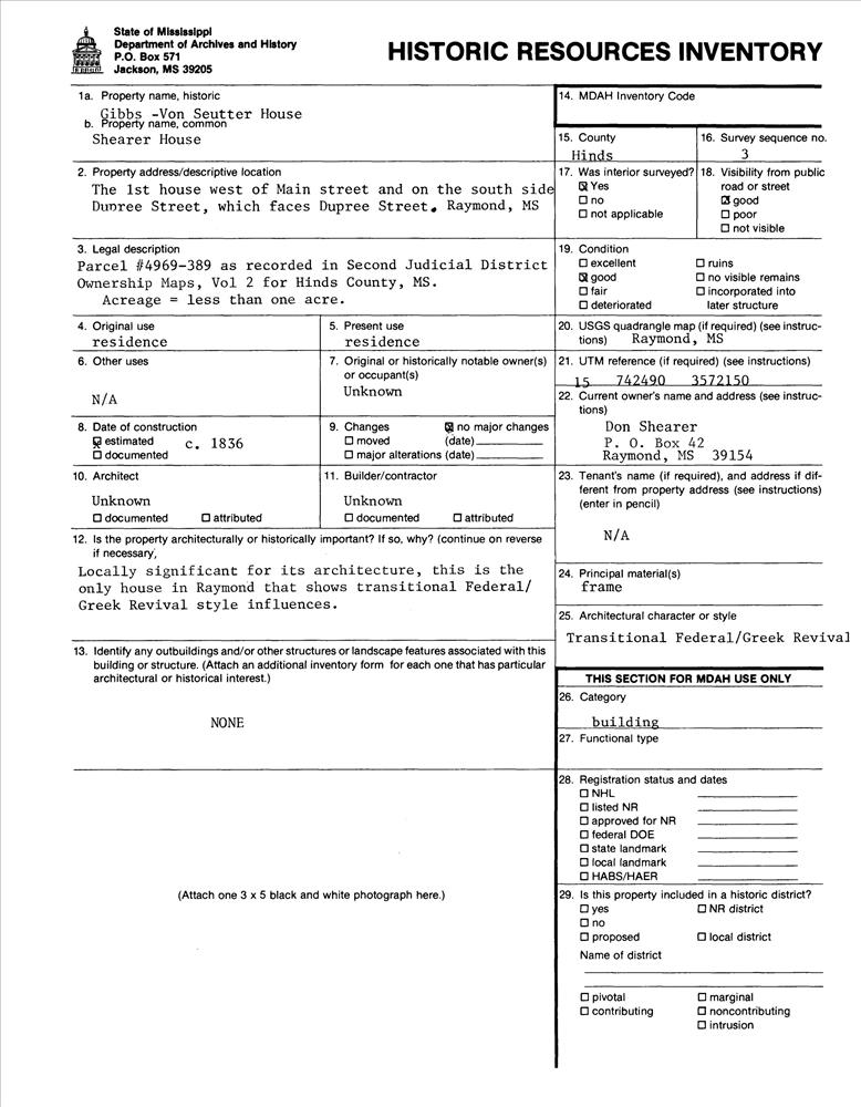
Gibbs--Von Seutter House
National Register Information System ID:
86001705
Multiple Listing:
Raymond and Vicinity MRA
Applicable Criteria:
ARCHITECTURE/ENGINEERING
Architectural Styles:
GREEK REVIVAL
OTHER
FEDERAL
Architects:
Unknown
Areas Of Significance:
ARCHITECTURE
Periods Of Significance:
1825-1849
Significant Years:
1836
Resource Type:
BUILDING
Keywords:
1836
Note:
S side of Dupree St.
Related Collections:
National Register of Historic Places Collection
Resource Format:
pdf
File Size (bytes):
69355
Date Published:
7/15/1986
Parks:
National Register of Historic Places
Locations:
State: Mississippi
County: Hinds County
Raymond ; S side of Dupree St.
Rating:
Categories:
Historic
Asset ID:
8dc8c8a3-0b7e-4967-a4f2-8268f18a7608
Related Portals:
NPGallery Main Search
HIDE METADATA
Copyright