National Park Service
×
Copyright Information:
NATIONAL REGISTER DIGITAL ASSETS
DOWNLOAD THIS PDF
DOWNLOAD THIS PDF
HIDE NATIONAL REGISTER ASSETS
Copyright
ASSET METADATA
Title:
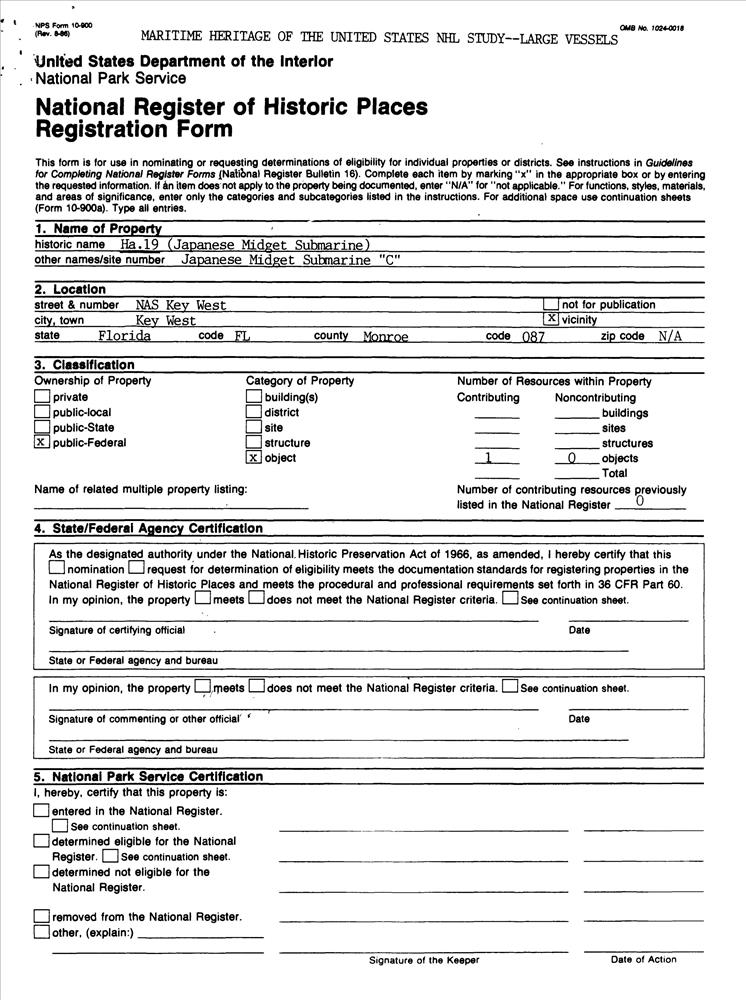
HA. 19 (Japanese Midget Submarine)
National Register Information System ID:
89001428
Applicable Criteria:
EVENT
Architects:
Kure Dockyard
Areas Of Significance:
MILITARY
Periods Of Significance:
1925-1949
Significant Years:
1941
Resource Type:
STRUCTURE
Keywords:
kure dockyard ; 1941
Note:
NAS Key West
Related Collections:
National Register of Historic Places Collection
Resource Format:
pdf
File Size (bytes):
576975
Date Published:
6/30/1989
Parks:
National Register of Historic Places
Locations:
State: Florida
County: Monroe County
Key West ; NAS Key West
Rating:
Categories:
Historic
Asset ID:
61c94783-e59b-49ad-87fa-5b5eb145e6e4
Related Portals:
NPGallery Main Search
HIDE METADATA
Copyright