National Park Service
×
Copyright Information:
NATIONAL REGISTER DIGITAL ASSETS
DOWNLOAD THIS PDF
DOWNLOAD THIS PDF
HIDE NATIONAL REGISTER ASSETS
Copyright
ASSET METADATA
Title:
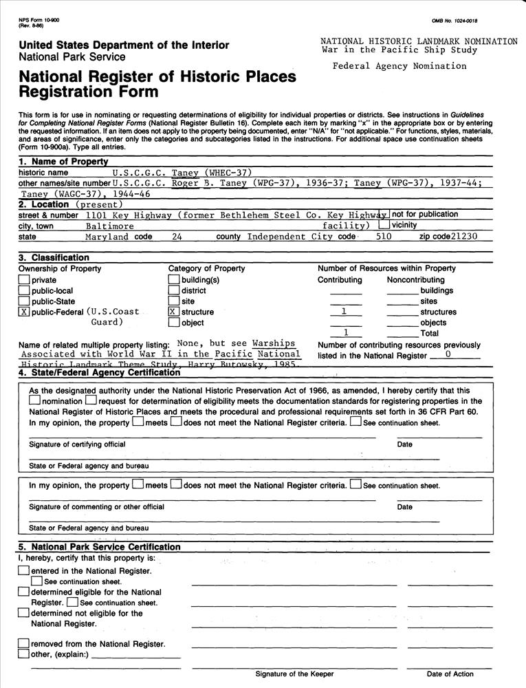
USCGC TANEY (WHEC-37)
National Register Information System ID:
88001826
Applicable Criteria:
EVENT
Architectural Styles:
OTHER
Architects:
US Coast Guard
Philadelphia Naval Shipyard
Areas Of Significance:
MILITARY
Periods Of Significance:
1950-1974
1975-2000
1925-1949
Significant Years:
1936
1941
1945
Resource Type:
STRUCTURE
Keywords:
us coast guard ; philadelphia naval shipyard ; 1936 ; 1941 ; 1945
Note:
1101 Key Hwy.
Related Collections:
National Register of Historic Places Collection
Resource Format:
pdf
File Size (bytes):
915682
Date Published:
6/7/1988
Parks:
National Register of Historic Places
Locations:
State: Maryland
County: Baltimore city
Baltimore (Independent City) ; 1101 Key Hwy.
Rating:
Categories:
Historic
Asset ID:
b0021e07-722a-41b1-90a1-5b1d9c42475e
Related Portals:
NPGallery Main Search
HIDE METADATA
Copyright