National Park Service
×
Copyright Information:
NATIONAL REGISTER DIGITAL ASSETS
DOWNLOAD THIS PDF
DOWNLOAD THIS PDF
HIDE NATIONAL REGISTER ASSETS
Copyright
ASSET METADATA
Title:
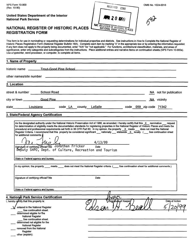
Trout--Good Pine School
National Register Information System ID:
99000592
Applicable Criteria:
EVENT
Architectural Styles:
COLONIAL REVIVAL
Architects:
Gremillion Brothers
Areas Of Significance:
EDUCATION
Periods Of Significance:
1925-1949
Significant Years:
1938
Resource Type:
BUILDING
Related Collections:
National Register of Historic Places Collection
Resource Format:
pdf
File Size (bytes):
162704
Date Published:
5/20/1999
Parks:
National Register of Historic Places
Locations:
State: Louisiana
County: La Salle Parish
Good Pine ; School Rd.
Rating:
Categories:
Historic
Asset ID:
2e39889b-8688-4160-952c-f3d0d7d3265b
HIDE METADATA
Copyright