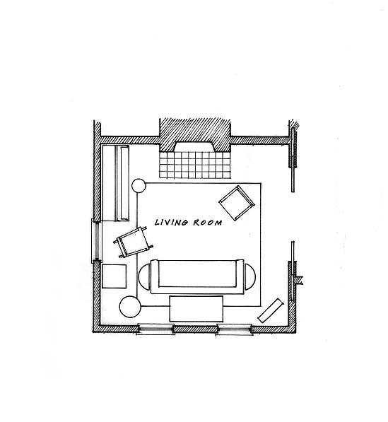
Interpretive Period: mid-1930s. Illustration depicts the floor plan of the living room of the Martin Luther King, Jr. birth home.
Select Item below to DOWNLOAD - Once item is selected, right click and choose 'save as'
b13d12aaf9524021b80f41f38614fba4
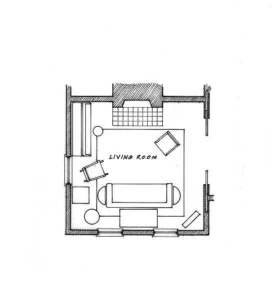
Interpretive Period: mid-1930s. Illustration depicts the floor plan of the living room of the Martin Luther King, Jr. birth home.
Interpretive Period: mid-1930s. Illustration depicts the floor plan of the living room of the Martin Luther King, Jr. birth home.
Abbr=DHF
U.S. National Park Service
Project=Martin Luther King, Jr. Birth Home; Art_Registration_No=DHF-0014 ; Reflective Art
Government owns art and all reproduction rights.
Public domain
Image
Martin Luther King, Jr. National Historical Park, Code: MALU
Martin Luther King, Jr. National Historical Park, Fulton County, Georgia
Latitude: 33.7549018859863, Longitude: -84.371696472168

Image Management System : IMS 09666
20190904
01/01/1991 - 12/30/1991
Count: 2/8; Historic Furnishings Report: Martin Luther King, Jr. Birth Home, page 44 Interpretive Period: mid-1930s
I 3
Public Can View
Patricia, Steven N.
Organization: Harpers Ferry Center
Address: Harpers Ferry Center, 67 Mather Place, Harpers Ferry, WV, 25425, 304-535-5050

Thursday, October 3, 2019 1:04:34 PM
Thursday, October 3, 2019 1:04:34 PM
09666.jpg
jpg
30.3 kB
Museum