National Park Service
Search NPGallery
Search NPGallery
Explore NPS.gov
×
Copyright Information:
NATIONAL REGISTER DIGITAL ASSETS
DOWNLOAD THIS PDF
DOWNLOAD THIS PDF
HIDE NATIONAL REGISTER ASSETS
Copyright
ASSET METADATA
Title:
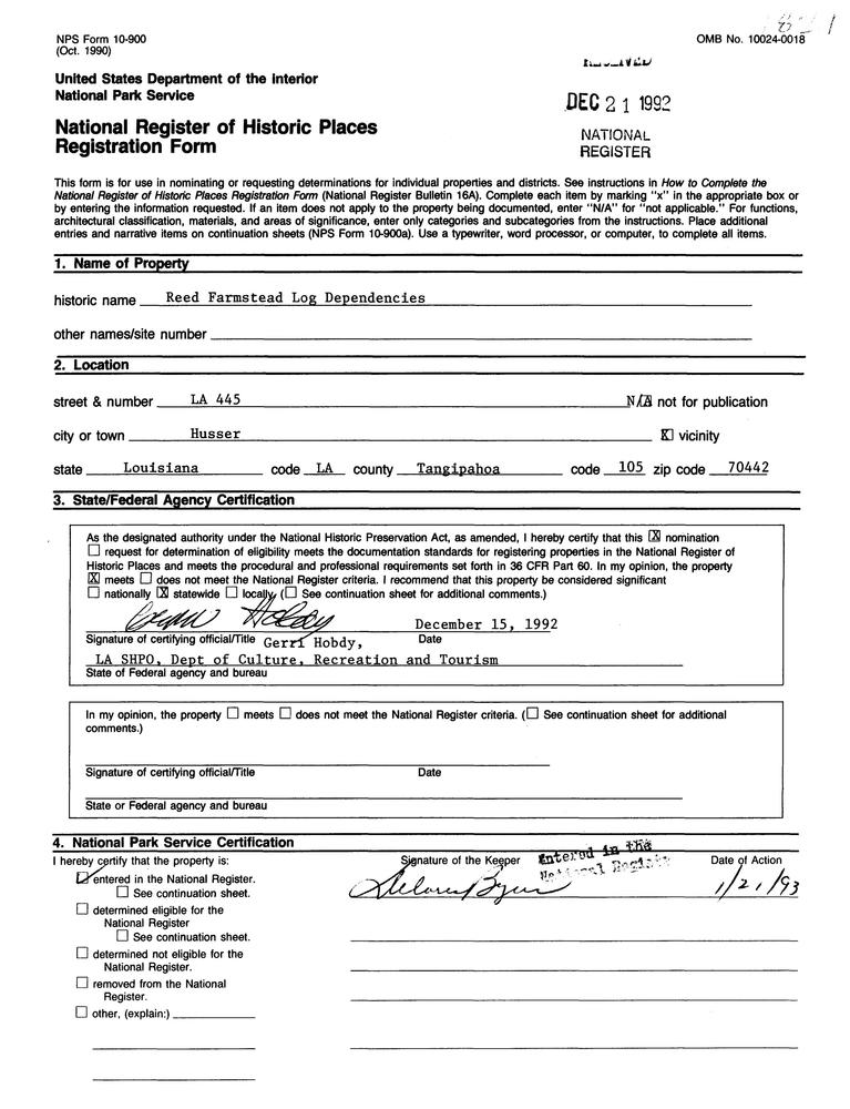
Reed Farmstead Log Dependencies
National Register Information System ID:
92001821
Applicable Criteria:
ARCHITECTURE/ENGINEERING
Architectural Styles:
OTHER
Architects:
Unknown
Areas Of Significance:
ARCHITECTURE
Periods Of Significance:
1875-1899
Significant Years:
1880
Resource Type:
BUILDING
Keywords:
1880
Note:
LA 445
Related Collections:
National Register of Historic Places Collection
Resource Format:
pdf
File Size (bytes):
331165
Date Published:
1/21/1993
Parks:
National Register of Historic Places
Locations:
State: Louisiana
County: Tangipahoa Parish
Husser ; LA 445
Rating:
Categories:
Historic
Asset ID:
a30cc99c-7f7c-4417-a3d2-5ddbd2bba9a5
Related Portals:
National Register of Historic Places
HIDE METADATA
Copyright