National Park Service
Search NPGallery
Search NPGallery
Explore NPS.gov
×
Copyright Information:
NATIONAL REGISTER DIGITAL ASSETS
DOWNLOAD THIS PDF
DOWNLOAD THIS PDF
HIDE NATIONAL REGISTER ASSETS
Copyright
ASSET METADATA
Title:
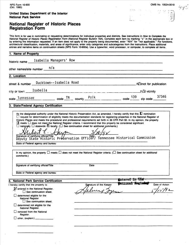
Isabella Managers' Row
National Register Information System ID:
92000448
Multiple Listing:
Tennessee Copper Basin MPS
Applicable Criteria:
EVENT
ARCHITECTURE/ENGINEERING
Architectural Styles:
OTHER
Architects:
Ducktown Sulphur,Copper and Iron Co.
Areas Of Significance:
INDUSTRY
ARCHITECTURE
Periods Of Significance:
1900-1924
1875-1899
1925-1949
Significant Years:
1890
Resource Type:
DISTRICT
Keywords:
ducktown sulphur,copper and iron co. ; 1890
Note:
Ducktown--Isabella Rd. N of US 64
Related Collections:
National Register of Historic Places Collection
Resource Format:
pdf
File Size (bytes):
613502
Date Published:
5/15/1992
Parks:
National Register of Historic Places
Locations:
State: Tennessee
County: Polk County
Isabella ; Ducktown--Isabella Rd. N of US 64
Rating:
Categories:
Historic
Asset ID:
6f369033-cd37-425e-8c24-3aa2d85902ff
Related Portals:
National Register of Historic Places
HIDE METADATA
Copyright
NATIONAL REGISTER DIGITAL ASSETS
DOWNLOAD THIS PDF
DOWNLOAD THIS PDF
HIDE NATIONAL REGISTER ASSETS
Copyright
ASSET METADATA
Title:
Isabella Managers' Row
National Register Information System ID:
92000448
Multiple Listing:
Tennessee Copper Basin MPS
Applicable Criteria:
EVENT
ARCHITECTURE/ENGINEERING
Architectural Styles:
OTHER
Architects:
Ducktown Sulphur,Copper and Iron Co.
Areas Of Significance:
INDUSTRY
ARCHITECTURE
Periods Of Significance:
1900-1924
1875-1899
1925-1949
Significant Years:
1890
Resource Type:
DISTRICT
Keywords:
ducktown sulphur,copper and iron co. ; 1890
Note:
Ducktown--Isabella Rd. N of US 64
Related Collections:
National Register of Historic Places Collection
Resource Format:
pdf
File Size (bytes):
355360
Date Published:
5/15/1992
Parks:
National Register of Historic Places
Locations:
State: Tennessee
County: Polk County
Isabella ; Ducktown--Isabella Rd. N of US 64
Rating:
Categories:
Historic
Asset ID:
de44f850-8a76-4eea-8ba0-c3c823189748
Related Portals:
National Register of Historic Places
HIDE METADATA
Copyright