National Park Service
Search NPGallery
Search NPGallery
Explore NPS.gov
×
Copyright Information:
NATIONAL REGISTER DIGITAL ASSETS
DOWNLOAD THIS PDF
DOWNLOAD THIS PDF
HIDE NATIONAL REGISTER ASSETS
Copyright
ASSET METADATA
Title:
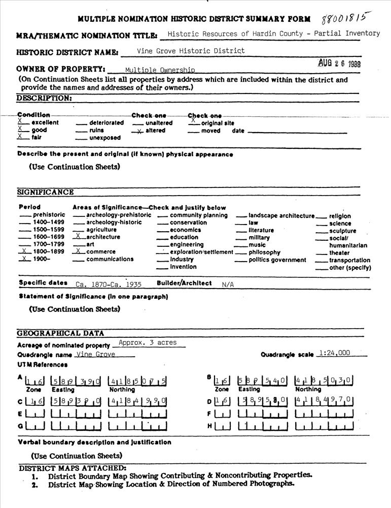
Vine Grove Historic District
National Register Information System ID:
88001815
Multiple Listing:
Hardin County MRA
Applicable Criteria:
EVENT
ARCHITECTURE/ENGINEERING
Architectural Styles:
QUEEN ANNE
Architects:
Unknown
Areas Of Significance:
COMMERCE
ARCHITECTURE
Periods Of Significance:
1900-1924
1875-1899
1850-1874
1925-1949
Resource Type:
DISTRICT
Note:
104--221 W. Main St.
Related Collections:
National Register of Historic Places Collection
Resource Format:
pdf
File Size (bytes):
568374
Date Published:
10/5/1988
Parks:
National Register of Historic Places
Locations:
State: Kentucky
County: Hardin County
Vine Grove ; 104--221 W. Main St.
Rating:
Categories:
Historic
Asset ID:
028f8e86-74fd-4902-8ad7-936883f039b6
Related Portals:
National Register of Historic Places
HIDE METADATA
Copyright
NATIONAL REGISTER DIGITAL ASSETS
DOWNLOAD THIS PDF
DOWNLOAD THIS PDF
HIDE NATIONAL REGISTER ASSETS
Copyright
ASSET METADATA
Title:
Vine Grove Historic District
National Register Information System ID:
88001815
Multiple Listing:
Hardin County MRA
Applicable Criteria:
EVENT
ARCHITECTURE/ENGINEERING
Architectural Styles:
QUEEN ANNE
Architects:
Unknown
Areas Of Significance:
COMMERCE
ARCHITECTURE
Periods Of Significance:
1900-1924
1875-1899
1850-1874
1925-1949
Resource Type:
DISTRICT
Note:
104--221 W. Main St.
Related Collections:
National Register of Historic Places Collection
Resource Format:
pdf
File Size (bytes):
829275
Date Published:
10/5/1988
Parks:
National Register of Historic Places
Locations:
State: Kentucky
County: Hardin County
Vine Grove ; 104--221 W. Main St.
Rating:
Categories:
Historic
Asset ID:
36ce1d33-abd6-4262-8c10-ce18e9526a03
Related Portals:
National Register of Historic Places
HIDE METADATA
Copyright