National Park Service
Search NPGallery
Search NPGallery
Explore NPS.gov
×
Copyright Information:
NATIONAL REGISTER DIGITAL ASSETS
DOWNLOAD THIS PDF
DOWNLOAD THIS PDF
HIDE NATIONAL REGISTER ASSETS
Copyright
ASSET METADATA
Title:
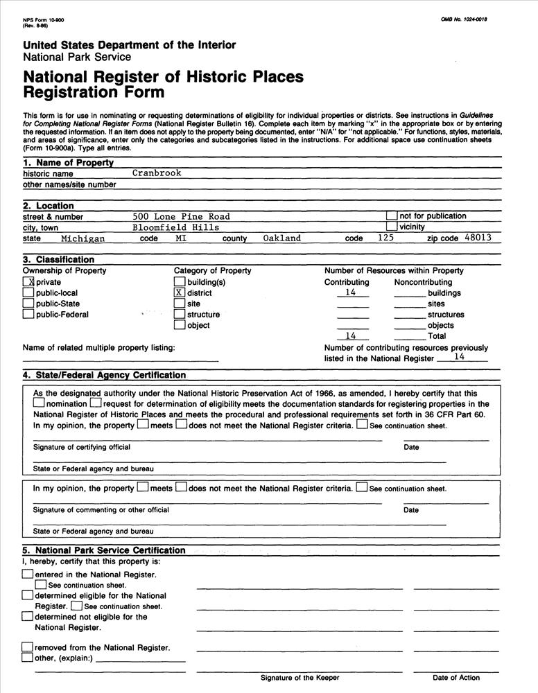
Cranbrook
National Register Information System ID:
73000954
Applicable Criteria:
EVENT
ARCHITECTURE/ENGINEERING
PERSON
Architectural Styles:
LATE GOTHIC REVIVAL
MODERNE
TUDOR REVIVAL
Architects:
Saarinen,Eliel
Kahn,Albert
Areas Of Significance:
ART
EUROPEAN
ARCHITECTURE
Periods Of Significance:
1900-1924
1925-1949
Significant Years:
1908
1941
Significant Names:
Milles,Carl
Resource Type:
DISTRICT
Related Collections:
National Register of Historic Places Collection
Resource Format:
pdf
File Size (bytes):
723328
Date Published:
3/7/1973
Parks:
National Register of Historic Places
Locations:
State: Michigan
County: Oakland County
Bloomfield Hills ; Lone Pine Rd.
Rating:
Categories:
Historic
Asset ID:
86eb0009-8c92-47aa-afc2-7d39b4c129ec
Related Portals:
National Register of Historic Places
HIDE METADATA
Copyright
NATIONAL REGISTER DIGITAL ASSETS
DOWNLOAD THIS PDF
DOWNLOAD THIS PDF
HIDE NATIONAL REGISTER ASSETS
Copyright
ASSET METADATA
Title:
Cranbrook
National Register Information System ID:
73000954
Applicable Criteria:
EVENT
ARCHITECTURE/ENGINEERING
PERSON
Architectural Styles:
LATE GOTHIC REVIVAL
MODERNE
TUDOR REVIVAL
Architects:
Saarinen,Eliel
Kahn,Albert
Areas Of Significance:
ART
EUROPEAN
ARCHITECTURE
Periods Of Significance:
1900-1924
1925-1949
Significant Years:
1908
1941
Significant Names:
Milles,Carl
Resource Type:
DISTRICT
Related Collections:
National Register of Historic Places Collection
Resource Format:
pdf
File Size (bytes):
3495314
Date Published:
3/7/1973
Parks:
National Register of Historic Places
Locations:
State: Michigan
County: Oakland County
Bloomfield Hills ; Lone Pine Rd.
Rating:
Categories:
Historic
Asset ID:
a2b032f7-1b2e-46b8-b87a-0474f368d0be
Related Portals:
National Register of Historic Places
HIDE METADATA
Copyright