National Park Service
Search NPGallery
Search NPGallery
Explore NPS.gov
×
Copyright Information:
NATIONAL REGISTER DIGITAL ASSETS
DOWNLOAD THIS PDF
DOWNLOAD THIS PDF
HIDE NATIONAL REGISTER ASSETS
Copyright
ASSET METADATA
Title:
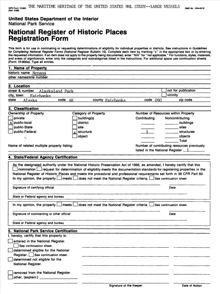
NENANA (steamer)
National Register Information System ID:
72001581
Applicable Criteria:
EVENT
ARCHITECTURE/ENGINEERING
Architects:
Seattle Shipbuilding Co.
Areas Of Significance:
TRANSPORTATION
ARCHITECTURE
MARITIME HISTORY
Periods Of Significance:
1925-1949
Significant Years:
1933
Resource Type:
STRUCTURE
Related Collections:
National Register of Historic Places Collection
Resource Format:
pdf
File Size (bytes):
713329
Date Published:
6/27/1972
Parks:
National Register of Historic Places
Locations:
State: Alaska
County: Fairbanks North Star Borough
Fairbanks ; Alaskaland
Rating:
Categories:
Historic
Asset ID:
1fc2f8a6-40a6-4432-b594-4d5fc39dd6f8
Related Portals:
National Register of Historic Places
HIDE METADATA
Copyright
ALBUMS IN WHICH THIS ASSET APPEARS
Album -
118
Photos
Maritime National Historic Landmarks: Large Vessels
HIDE ALBUMS
NATIONAL REGISTER DIGITAL ASSETS
DOWNLOAD THIS PDF
DOWNLOAD THIS PDF
HIDE NATIONAL REGISTER ASSETS
Copyright
ASSET METADATA
Title:
NENANA (steamer)
National Register Information System ID:
72001581
Applicable Criteria:
EVENT
ARCHITECTURE/ENGINEERING
Architects:
Seattle Shipbuilding Co.
Areas Of Significance:
TRANSPORTATION
ARCHITECTURE
MARITIME HISTORY
Periods Of Significance:
1925-1949
Significant Years:
1933
Resource Type:
STRUCTURE
Related Collections:
National Register of Historic Places Collection
Resource Format:
pdf
File Size (bytes):
1445342
Date Published:
6/27/1972
Parks:
National Register of Historic Places
Locations:
State: Alaska
County: Fairbanks North Star Borough
Fairbanks ; Alaskaland
Rating:
Categories:
Historic
Asset ID:
52523a15-8b48-4a63-850e-1776f528138a
Related Portals:
National Register of Historic Places
HIDE METADATA
Copyright