National Park Service
Search NPGallery
Search NPGallery
Explore NPS.gov
×
Copyright Information:
NATIONAL REGISTER DIGITAL ASSETS
DOWNLOAD THIS PDF
DOWNLOAD THIS PDF
HIDE NATIONAL REGISTER ASSETS
Copyright
ASSET METADATA
Title:
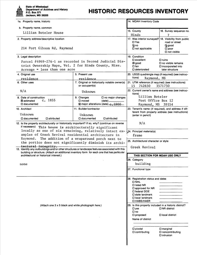
Boteler, Lillian, House
National Register Information System ID:
86001703
Multiple Listing:
Raymond and Vicinity MRA
Applicable Criteria:
ARCHITECTURE/ENGINEERING
Architectural Styles:
GREEK REVIVAL
Architects:
Unknown
Areas Of Significance:
ARCHITECTURE
Periods Of Significance:
1875-1899
Significant Years:
1885
Resource Type:
BUILDING
Keywords:
1885
Note:
214 Port Gibson Rd.
Related Collections:
National Register of Historic Places Collection
Resource Format:
pdf
File Size (bytes):
202096
Date Published:
7/15/1986
Parks:
National Register of Historic Places
Locations:
State: Mississippi
County: Hinds County
Raymond ; 214 Port Gibson Rd.
Rating:
Categories:
Historic
Asset ID:
51309f88-fbe6-4a04-92ca-3a006562fb0c
Related Portals:
National Register of Historic Places
HIDE METADATA
Copyright