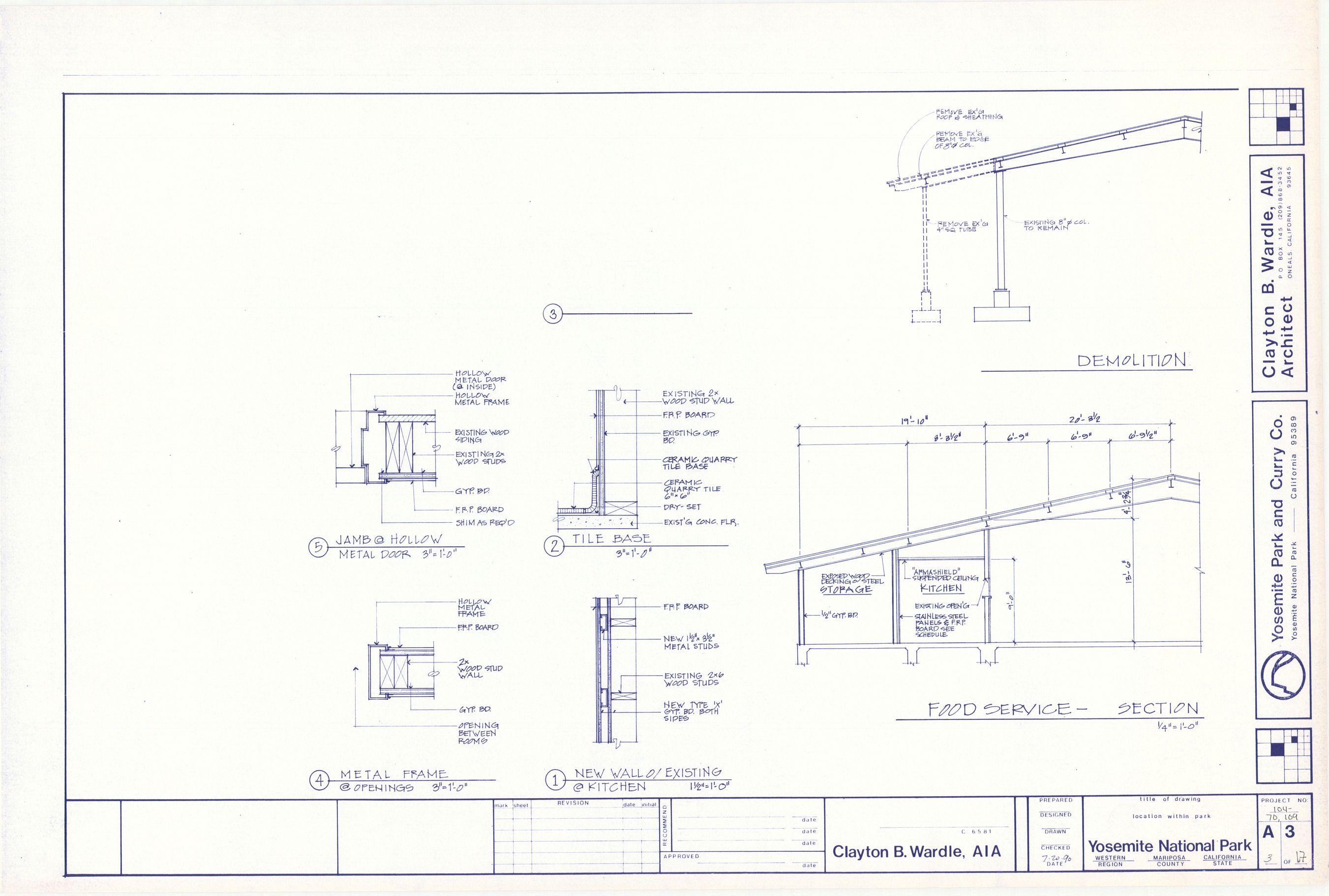
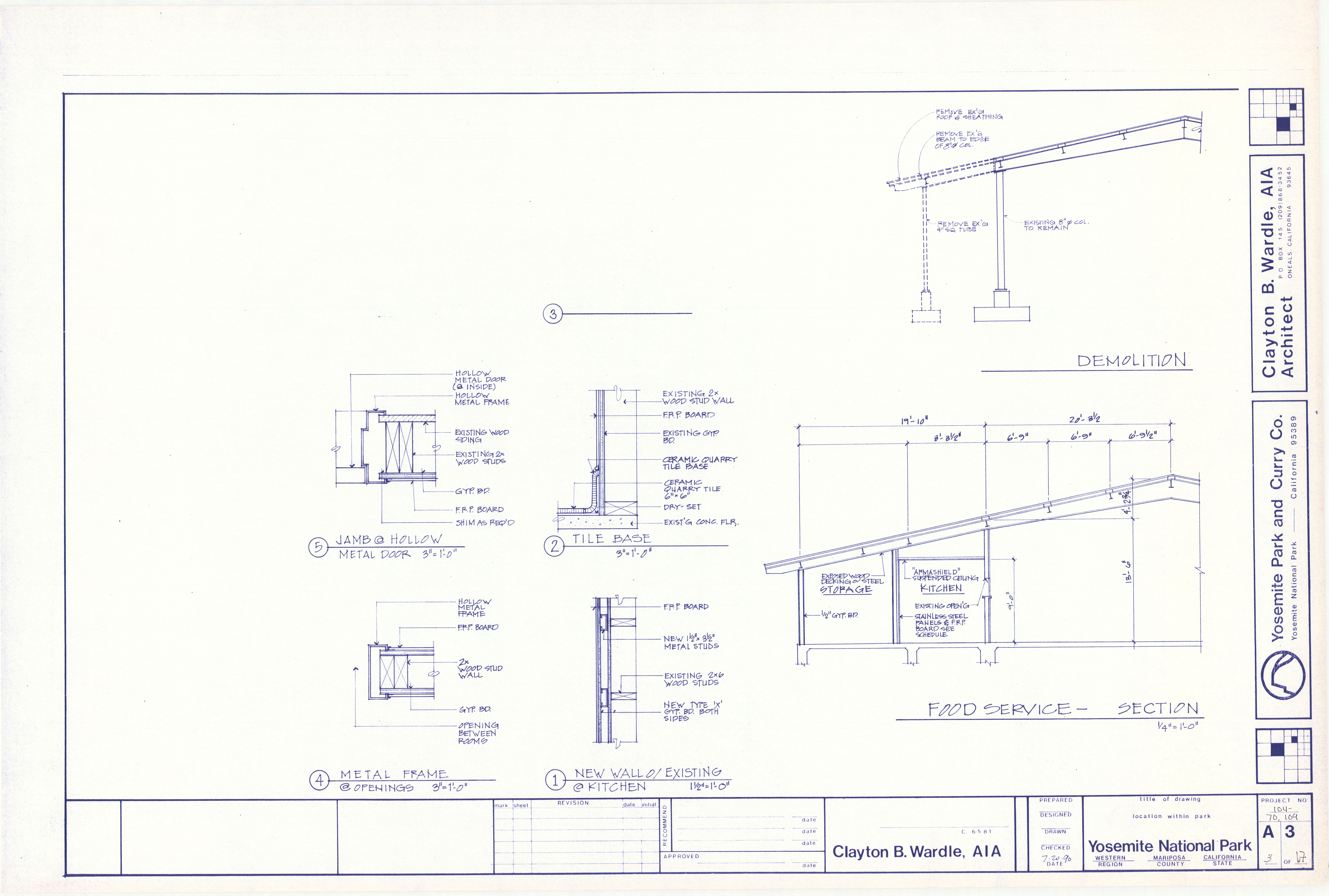
Reception Lobby and Broiler Room Kitchen Renovation - Yosemite Lodge
Select Item below to DOWNLOAD - Once item is selected, right click and choose 'save as'
d572027a-d70e-46d7-8733-347b057c347e
Reception Lobby and Broiler Room Kitchen Renovation - Yosemite Lodge
Reception Lobby and Broiler Room Kitchen Renovation - Yosemite Lodge
Demolition and food service section
Item Number: YOSEAR002108C, AlternateId: 104/70109
Contact Yosemite National Park for more copyright information and use
Public domain:This digital asset is in the public domain. When using this asset for any purpose, including online, credit:'Courtesy U.S. National Parks'
104/70109, (YOSE TIC Number)
Image
Yosemite National Park, Code: YOSE
Yosemite National Park, California
Yosemite National Park, California
Latitude: 37.8399200439453, Longitude: -119.540397644043

1990
01/01/1990 - 12/30/1990
Type:diazotype paper, Dimensions: 25 x 36.5, Condition: good
YOSE Location: E4 DR19 (5-A-011 Yosemite Lodge 1990-1999)
Public Can View
Clayton B. Wardle
Person: Archivist
Organization: US National Park Service
Address: Yosemite National Park Archives, PO Box 700-W, El Portal, CA 95318
Email: yose_archives@nps.gov

Monday, July 24, 2023 9:04:17 PM
Monday, July 24, 2023 9:04:17 PM
YOSEAR002108C.tif
tif
945.2 MB
Historic , Map