National Park Service
×
Copyright Information:
NATIONAL REGISTER DIGITAL ASSETS
DOWNLOAD THIS PDF
DOWNLOAD THIS PDF
HIDE NATIONAL REGISTER ASSETS
Copyright
ASSET METADATA
Title:
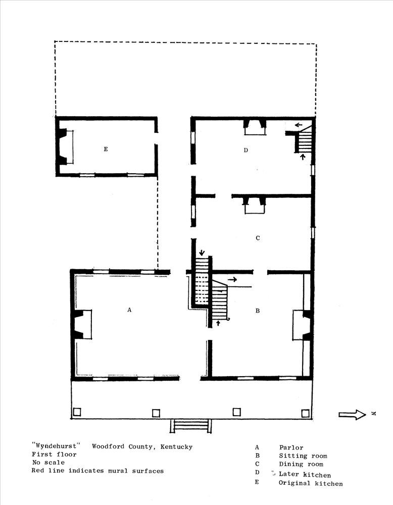
Wyndehurst
National Register Information System ID:
78001419
Multiple Listing:
Cohen Mural Houses TR
Applicable Criteria:
ARCHITECTURE/ENGINEERING
PERSON
Architectural Styles:
FEDERAL
Architects:
Unknown
Areas Of Significance:
ART
ARCHITECTURE
Periods Of Significance:
1800-1824
1825-1849
Significant Years:
1810
Significant Names:
Cohen,Alfred
Resource Type:
BUILDING
Related Collections:
National Register of Historic Places Collection
Resource Format:
pdf
File Size (bytes):
24062
Date Published:
11/15/1978
Parks:
National Register of Historic Places
Locations:
State: Kentucky
County: Woodford County
Versailles ; 5 mi. (8 km) SW of Versailles off SR 1964
Rating:
Categories:
Historic
Asset ID:
d98f8eb8-be25-4f3a-940b-704ea53f2320
Related Portals:
NPGallery Main Search
HIDE METADATA
Copyright