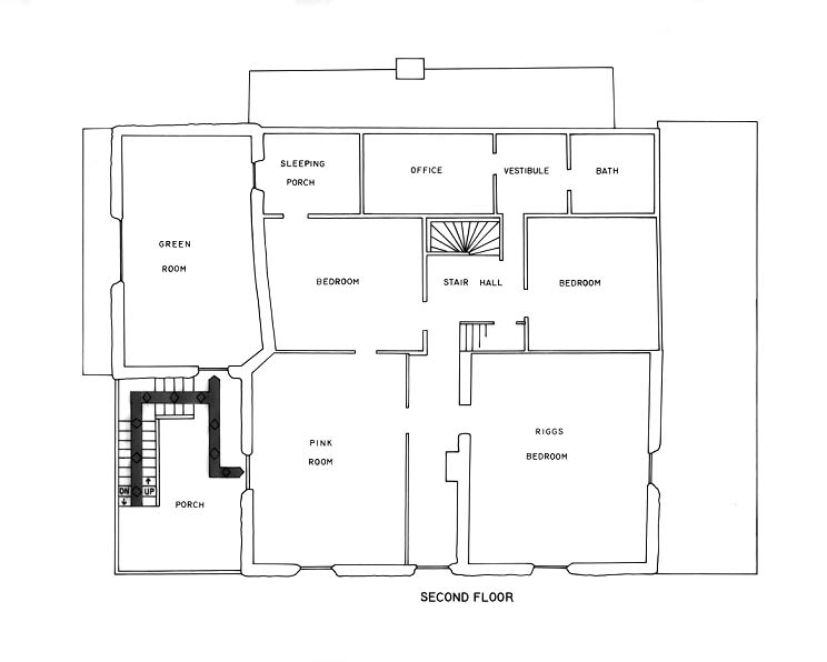
Interpretive Period: late 1950's - early 1960's. Illustration depicts the plan of the second floor.
Select Item below to DOWNLOAD - Once item is selected, right click and choose 'save as'
11bda3ebaa4943d0b5add019467465c4
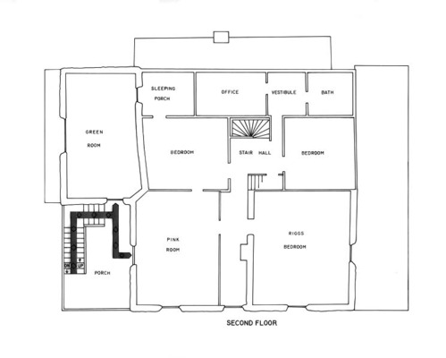
Interpretive Period: late 1950's - early 1960's. Illustration depicts the plan of the second floor.
Interpretive Period: late 1950's - early 1960's. Illustration depicts the plan of the second floor.
Abbr=DHF
U.S. National Park Service
Project=Faraway Ranch ; Reflective Art
Government owns art and all reproduction rights.
Public domain
Pen and ink on frosted Mylar, (HFC ArtMedium)
Image
Chiricahua National Monument, Code: CHIR
Chiricahua National Monument, Cochise County, Arizona
Latitude: 32.0121994018555, Longitude: -109.341003417969

Image Management System : IMS 09603
20190904
01/01/1985 - 12/30/1985
Count: 7/11; Historic Furnishings Report: Faraway Ranch, page 8. Interpretive period is late 1950s-early 1960s
I 3
Public Can View
Lyon, Rebecca
Organization: Harpers Ferry Center
Address: Harpers Ferry Center, 67 Mather Place, Harpers Ferry, WV, 25425, 304-535-5050

Thursday, October 3, 2019 1:07:36 PM
Thursday, October 3, 2019 1:07:36 PM
09603.jpg
jpg
34.4 kB
Museum