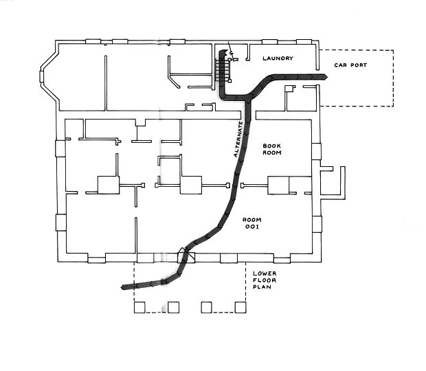
Interpretive Period 1967, just before Sandburg's death. Illustration depicts the Lower Floor Visitor's Circulation Plan.
Select Item below to DOWNLOAD - Once item is selected, right click and choose 'save as'
9cc6bf3a8c1042b48be08f24b78cc476
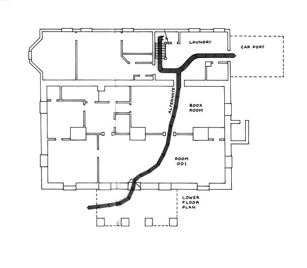
Interpretive Period 1967, just before Sandburg's death. Illustration depicts the Lower Floor Visitor's Circulation Plan.
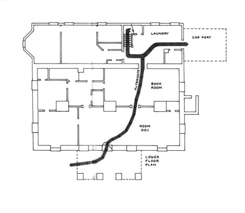
Interpretive Period 1967, just before Sandburg's death. Illustration depicts the Lower Floor Visitor's Circulation Plan.
Abbr=DHF
U.S. National Park Service
Project=Carl Sandburg Home and Swedish House ; Reflective Art
Government owns art and all reproduction rights.
Public domain
Pen and ink on frosted Mylar, (HFC ArtMedium)
Image
Carl Sandburg Home National Historic Site, Code: CARL
Carl Sandburg Home National Historic Site, Henderson County, North Carolina
Latitude: 35.2681999206543, Longitude: -82.4511032104492

Image Management System : IMS 09589
20190904
01/01/1985 - 12/30/1985
Count: 13/20; Historic Furnishings Report: Carl Sandburg Home and Swedish House Interpretive Period 1967, just before Carl Sandburg's death
I 3
Public Can View
Lyon, Rebecca
Organization: Harpers Ferry Center
Address: Harpers Ferry Center, 67 Mather Place, Harpers Ferry, WV, 25425, 304-535-5050

Thursday, October 3, 2019 1:08:18 PM
Thursday, October 3, 2019 1:08:18 PM
09589.jpg
jpg
31.7 kB
Museum