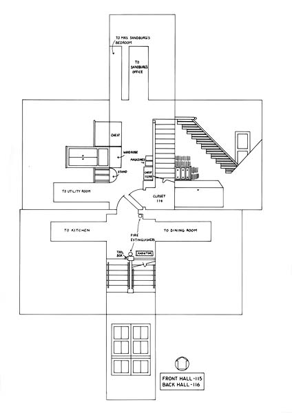
Interpretive Period 1967, just before Sandburg's death. Illustration depicts the front and back hall.
Select Item below to DOWNLOAD - Once item is selected, right click and choose 'save as'
7f029066fbde43b5b3c1c3262f794aaa
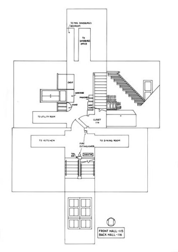
Interpretive Period 1967, just before Sandburg's death. Illustration depicts the front and back hall.
Interpretive Period 1967, just before Sandburg's death. Illustration depicts the front and back hall.
Abbr=DHF
U.S. National Park Service
Project=Carl Sandburg Home and Swedish House ; Reflective Art
Government owns art and all reproduction rights.
Public domain
Pen and ink on frosted Mylar, (HFC ArtMedium)
Image
Carl Sandburg Home National Historic Site, Code: CARL
Carl Sandburg Home National Historic Site, Henderson County, North Carolina
Latitude: 35.2681999206543, Longitude: -82.4511032104492

Image Management System : IMS 09585
20190904
01/01/1985 - 12/30/1985
Count: 9/20; Historic Furnishings Report: Carl Sandburg Home and Swedish House Interpretive Period 1967, just before Carl Sandburg's death
I 3
Public Can View
Lyon, Rebecca
Organization: Harpers Ferry Center
Address: Harpers Ferry Center, 67 Mather Place, Harpers Ferry, WV, 25425, 304-535-5050

Thursday, October 3, 2019 1:08:28 PM
Thursday, October 3, 2019 1:08:28 PM
09585.jpg
jpg
26.2 kB
Museum