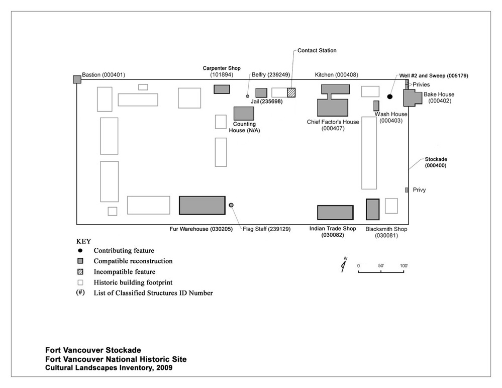
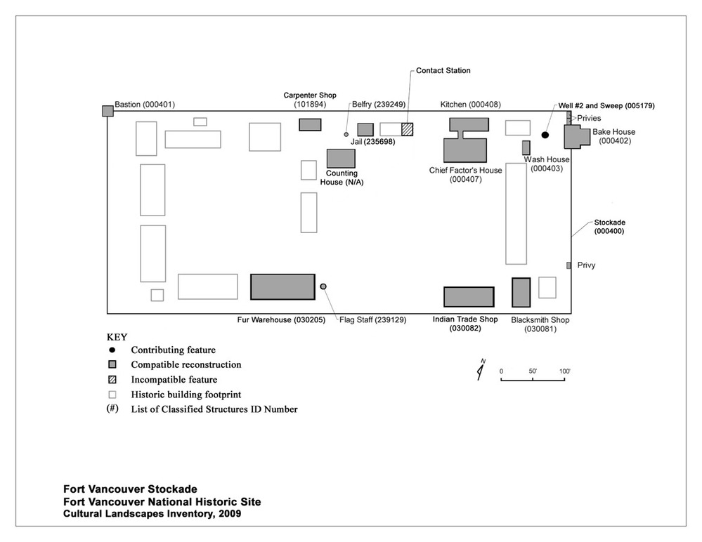
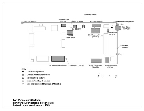
A site plan of the fort stockade shows reconstructed buildings and indicates historic compatibility.
Select Item below to DOWNLOAD - Once item is selected, right click and choose 'save as'
268EE714-9F5B-1D3F-437B842B0F1A1025
Fort Vancouver Stockade
A site plan of the fort stockade shows reconstructed buildings and indicates historic compatibility.
Fort Vancouver. The site plan for the Fort Vancouver Stockade identifies the structures within the fort walls, as well as their historic compatibility. Since the 1960s, the National Park Service has been incrementally reconstructing the buildings, structures, and landscape features associated with the HBC era of development.
U.S. National Park Service
Permission must be secured from the individual copyright owners to reproduce any copyrighted materials contained within this website. Digital assets without any copyright restrictions are public domain.
NPS
Public domain:Full Granting Rights
Image
Fort Vancouver National Historic Site, Code: FOVA
45.62225, -122.66267
Fort Vancouver National Historic Site
Latitude: 45.623851776123, Longitude: -122.662101745605

Public Can View
Wednesday, September 12, 2018 12:44:26 PM
Wednesday, September 12, 2018 12:44:26 PM
268FC2C6-F659-C716-582F2F8C8B81AA76.jpg
Thursday, July 23, 2015 10:14:43 PM
jpg
126.3 kB
Scenic
ALBUMS IN WHICH THIS ASSET APPEARS