Select Item below to DOWNLOAD - Once item is selected, right click and choose 'save as'
f63d9147-fd9e-4980-80c6-143056ef1f56
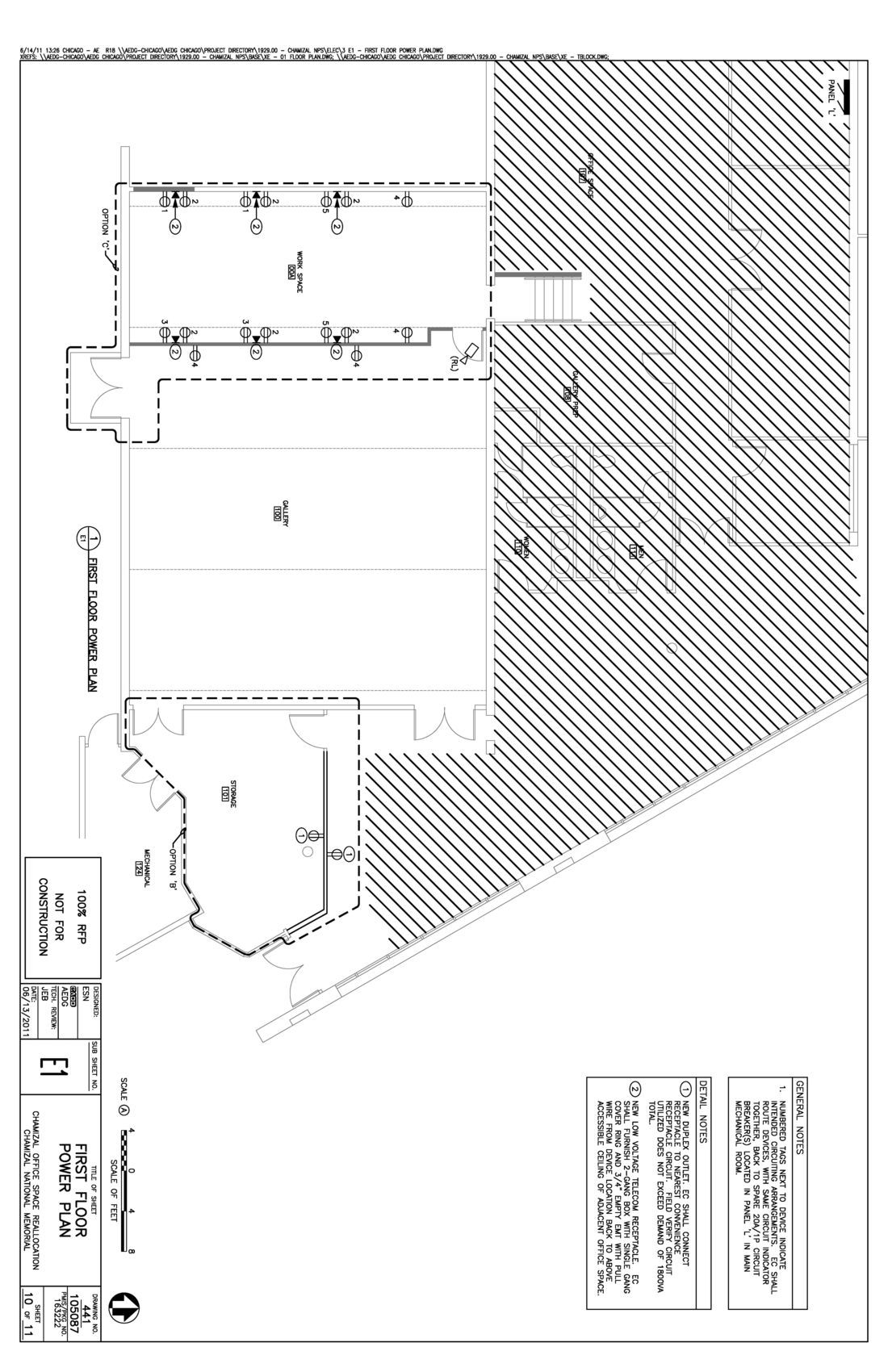
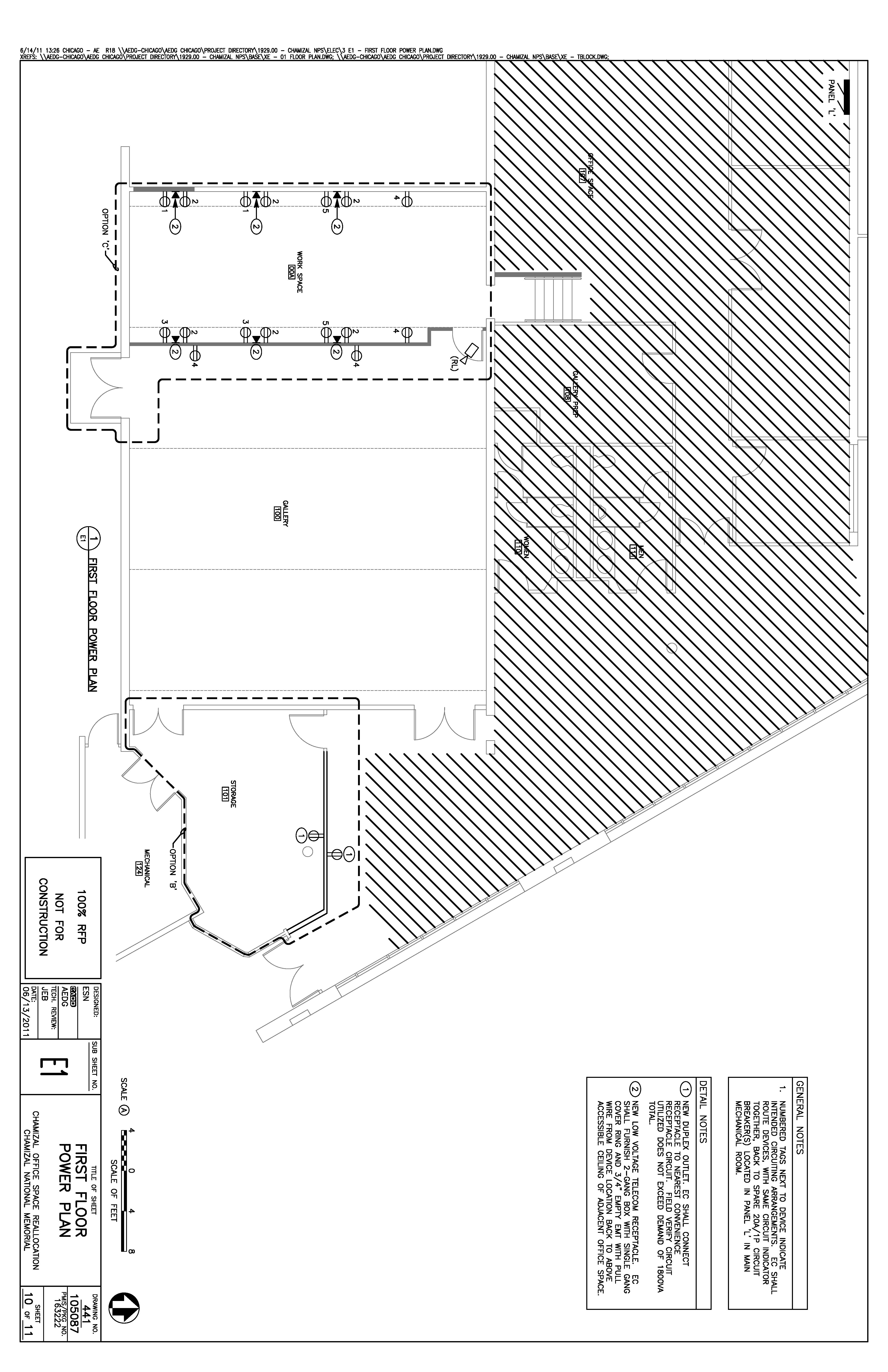
Pasiano Gallery Remodel and Space Allocation
The final A & E Drawings for future work.
Permission must be secured from the individual copyright owners to reproduce any copyrighted materials contained within this website. Digital assets without any copyright restrictions are public domain.
Public domain
Image
Chamizal National Memorial, Code: CHAM
Pasiano Gallery, Chamizal National Memorial, El Paso County, Texas
Latitude: 31.7672996520996, Longitude: -106.454002380371

PMIS (Project Management Information System) : 163222
Legacy NPS Focus Record ID : 488815
10/01/2010
Public Can View
Herman Pinales
Wednesday, November 14, 2012 1:54:23 PM
Thursday, August 10, 2017 1:33:30 PM
CHAM-76d236fbca374a2aaebfa4fcc8b50b36.tiff
Monday, January 1, 0001 12:00:00 AM
tiff
1.1 MB
Budget