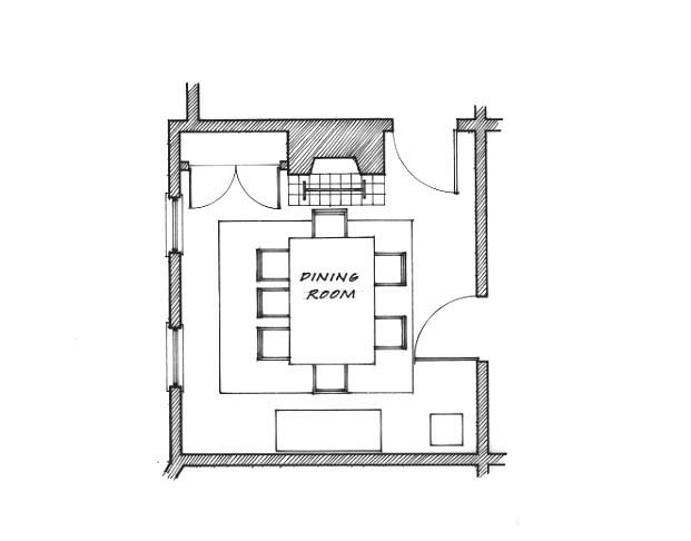
Interpretive Period: mid-1930s. Illustration depicts the floor plan of the dining room of the Martin Luther King, Jr. birth home.
Select Item below to DOWNLOAD - Once item is selected, right click and choose 'save as'
d435e8614ddc45a1a160ca66fa2babad
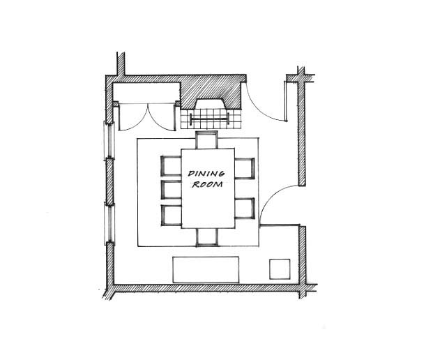
Interpretive Period: mid-1930s. Illustration depicts the floor plan of the dining room of the Martin Luther King, Jr. birth home.
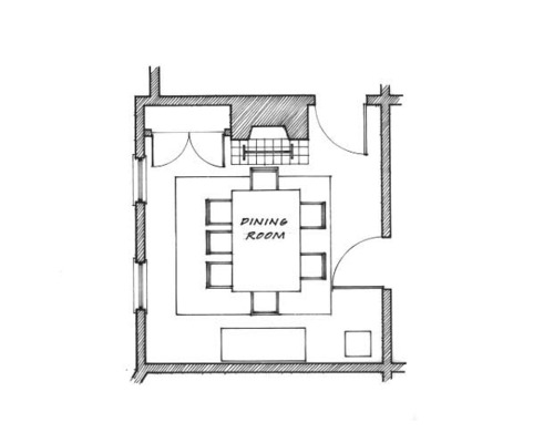
Interpretive Period: mid-1930s. Illustration depicts the floor plan of the dining room of the Martin Luther King, Jr. birth home.
Abbr=DHF
U.S. National Park Service
Project=Martin Luther King, Jr. Birth Home; Art_Registration_No=DHF-0014 ; Reflective Art
Government owns art and all reproduction rights.
Public domain
Image
Martin Luther King, Jr. National Historical Park, Code: MALU
Martin Luther King, Jr. National Historical Park, Fulton County, Georgia
Latitude: 33.7549018859863, Longitude: -84.371696472168

Image Management System : IMS 09669
20190904
01/01/1991 - 12/30/1991
Count: 5/8; Historic Furnishings Report: Martin Luther King, Jr. Birth Home, page 46 Interpretive Period: mid-1930s
I 3
Public Can View
Patricia, Steven N.
Organization: Harpers Ferry Center
Address: Harpers Ferry Center, 67 Mather Place, Harpers Ferry, WV, 25425, 304-535-5050

Thursday, October 3, 2019 1:04:26 PM
Thursday, October 3, 2019 1:04:26 PM
09669.jpg
jpg
26.1 kB
Museum