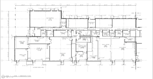
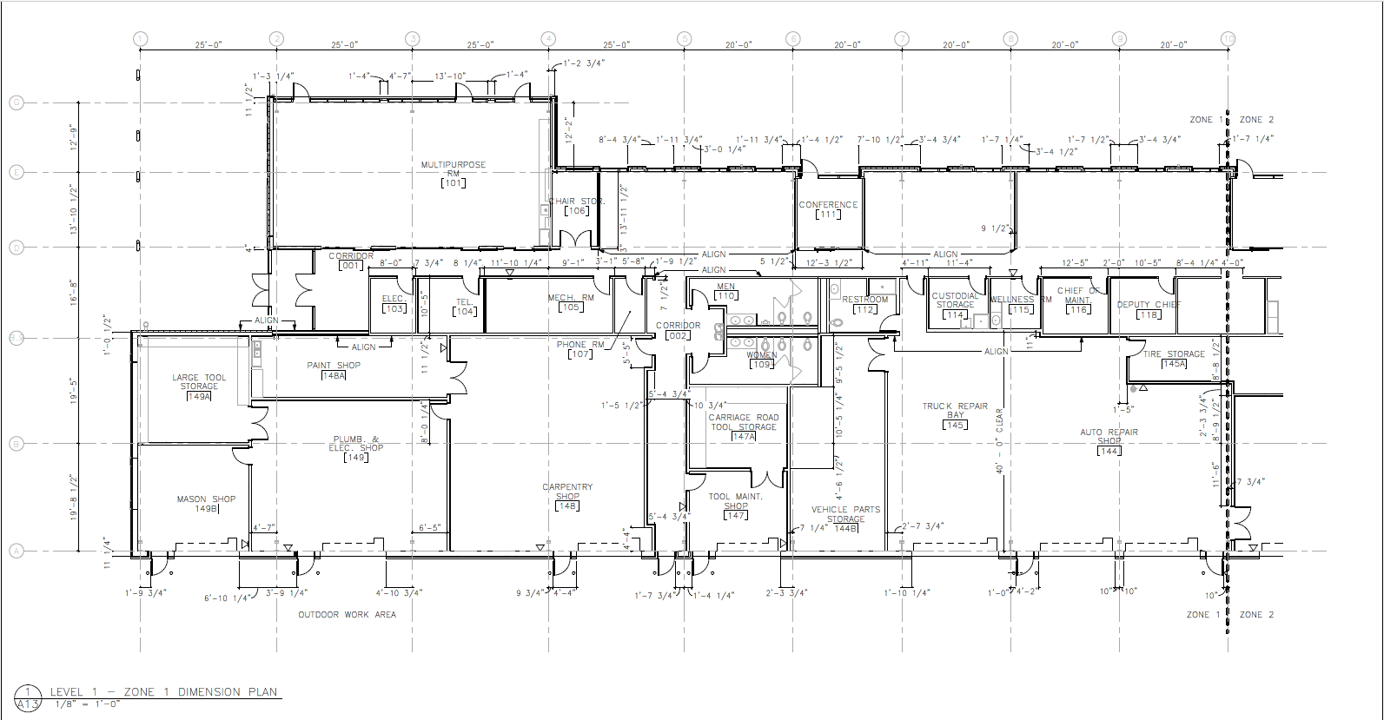
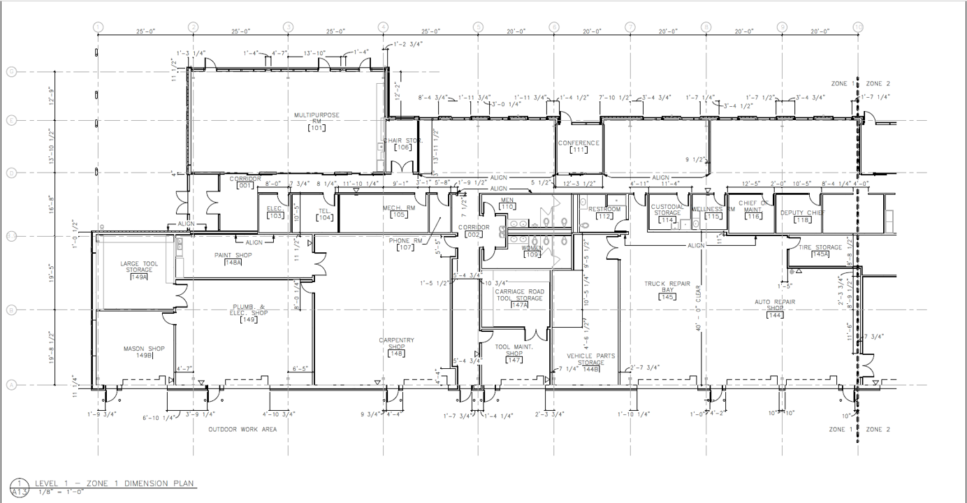
Floor plan of the north half of the new maintenance facility at Acadia National Park. This area will contain workshops for masons, plumbing, electrical, paint, carpentry, and auto repair staff, storage rooms, a multipurpose room, and office space.
Select Item below to DOWNLOAD - Once item is selected, right click and choose 'save as'
c0722c31-8bfc-4766-9ff6-cf1dd180a587
Floor Plan - North Side
Floor plan of the north half of the new maintenance facility at Acadia National Park. This area will contain workshops for masons, plumbing, electrical, paint, carpentry, and auto repair staff, storage rooms, a multipurpose room, and office space.
Floor plan of the north half of the new maintenance facility at Acadia National Park. This area will contain workshops for masons, plumbing, electrical, paint, carpentry, and auto repair staff, storage rooms, a multipurpose room, and office space.
Permission must be secured from the individual copyright owners to reproduce any copyrighted materials contained within this website. Digital assets without any copyright restrictions are public domain.
NPS Photo
Public domain:Full Granting Rights
Image
Acadia National Park, Code: ACAD
Acadia National Park, Maine
Latitude: 44.3593788146973, Longitude: -68.2397308349609

Public Can View
Wednesday, April 26, 2023 3:00:07 PM
Wednesday, April 26, 2023 3:05:05 PM
Floor Plan 1.png
png
221.0 kB
Scenic
ALBUMS IN WHICH THIS ASSET APPEARS