Yosemite Lodge Cafeteria
Select Item below to DOWNLOAD - Once item is selected, right click and choose 'save as'
b6e79307-637f-47b9-9139-4d4014fbe9b3
Yosemite Lodge Cafeteria
Yosemite Lodge Cafeteria
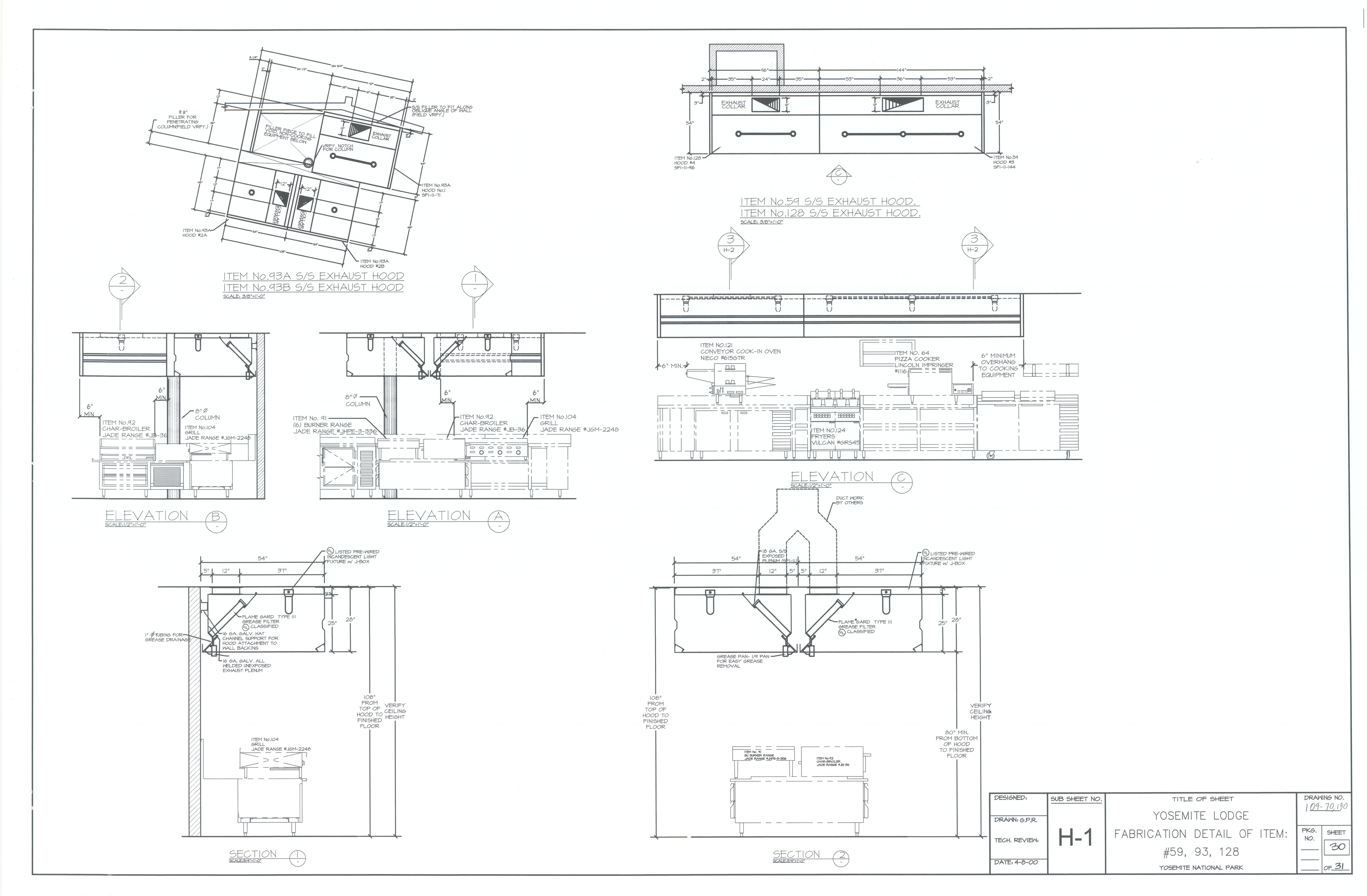
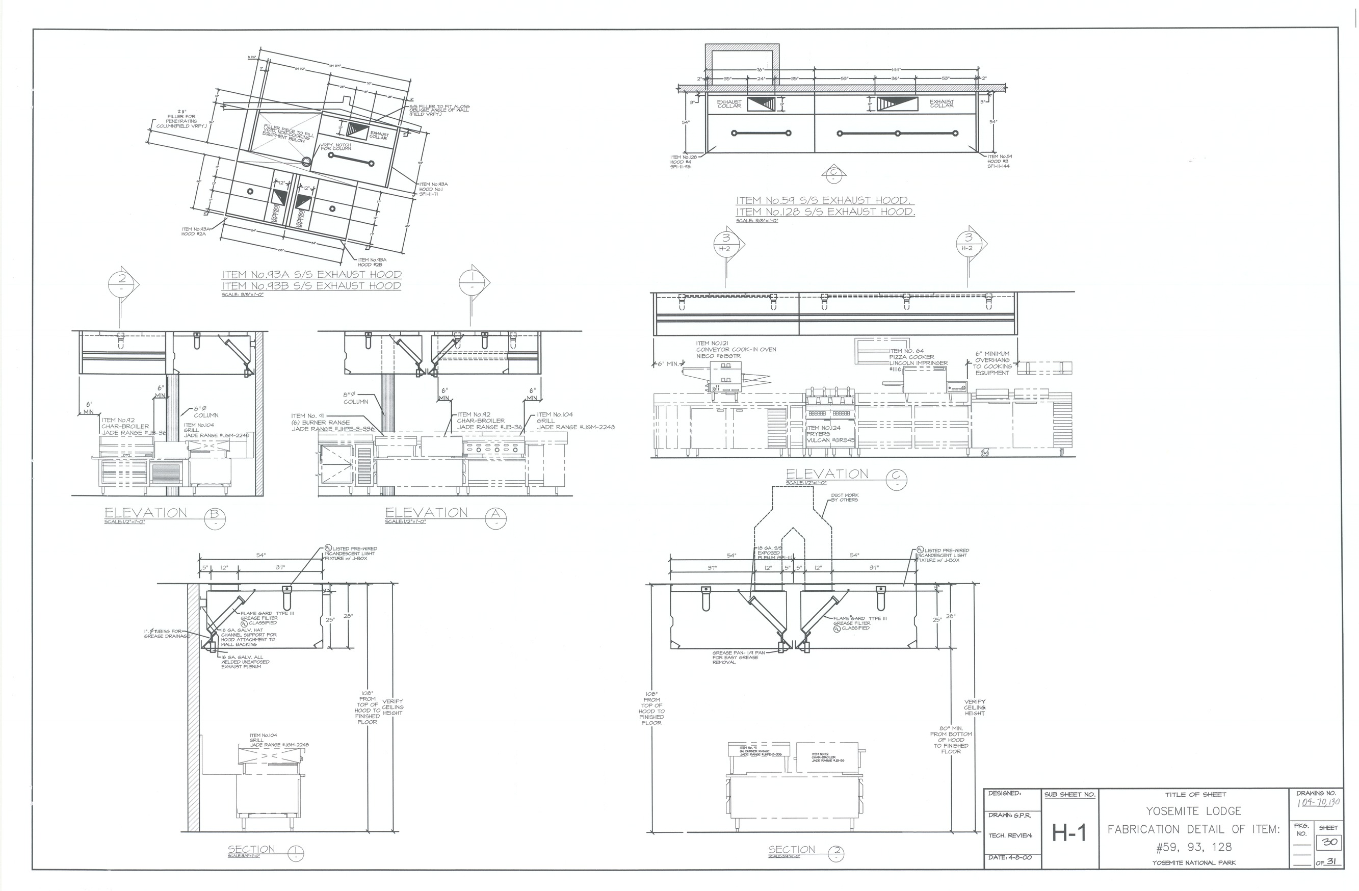
Food Service - Hood Details: Items No. 58, 93, 128
Item Number: YOSEAR002118.30, AlternateId: 104/70130
Contact Yosemite National Park for more copyright information and use
Public domain:This digital asset is in the public domain. When using this asset for any purpose, including online, credit:'Courtesy U.S. National Parks'
104/70130, (YOSE TIC Number)
Image
Yosemite National Park, Code: YOSE
Yosemite National Park, California
Yosemite National Park, California
Latitude: 37.8399200439453, Longitude: -119.540397644043

2000
01/01/2000 - 12/30/2000
Type:diazotype paper, Dimensions: 24 x 36, Condition: good
YOSE Location: E4 DR20 F(5-A-015 Yosemite Lodge 2000-2009)
Public Can View
Triad Associates
Person: Archivist
Organization: US National Park Service
Address: Yosemite National Park Archives, PO Box 700-W, El Portal, CA 95318
Email: yose_archives@nps.gov

Friday, July 21, 2023 7:56:50 PM
Friday, July 21, 2023 7:56:50 PM
YOSEAR002118.30.tif
tif
895.4 MB
Historic , Map