National Park Service
Search NPGallery
Search NPGallery
Explore NPS.gov
×
Copyright Information:
NATIONAL REGISTER DIGITAL ASSETS
DOWNLOAD THIS PDF
DOWNLOAD THIS PDF
HIDE NATIONAL REGISTER ASSETS
Copyright
ASSET METADATA
Title:
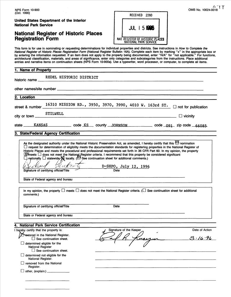
Redel Historic District
National Register Information System ID:
96000897
Applicable Criteria:
ARCHITECTURE/ENGINEERING
Architectural Styles:
QUEEN ANNE
Architects:
UNKNOWN
Areas Of Significance:
ARCHITECTURE
Periods Of Significance:
1925-1949
1900-1924
Significant Years:
1906
1932
1937
Resource Type:
BUILDING
Related Collections:
National Register of Historic Places Collection
Resource Format:
pdf
File Size (bytes):
2301573
Date Published:
8/16/1996
Parks:
National Register of Historic Places
Locations:
State: Kansas
County: Johnson County
Stilwell ; 16310 Mission Rd., 3950, 3970, 3990, and 4010 W. 163rd St.
Rating:
Categories:
Historic
Asset ID:
1cdb402c-d58b-4ef8-8106-dbe6d02b3af7
Related Portals:
National Register of Historic Places
HIDE METADATA
Copyright
NATIONAL REGISTER DIGITAL ASSETS
DOWNLOAD THIS PDF
DOWNLOAD THIS PDF
HIDE NATIONAL REGISTER ASSETS
Copyright
ASSET METADATA
Title:
Redel Historic District
National Register Information System ID:
96000897
Applicable Criteria:
ARCHITECTURE/ENGINEERING
Architectural Styles:
QUEEN ANNE
Architects:
UNKNOWN
Areas Of Significance:
ARCHITECTURE
Periods Of Significance:
1925-1949
1900-1924
Significant Years:
1906
1932
1937
Resource Type:
BUILDING
Related Collections:
National Register of Historic Places Collection
Resource Format:
pdf
File Size (bytes):
284973
Date Published:
8/16/1996
Parks:
National Register of Historic Places
Locations:
State: Kansas
County: Johnson County
Stilwell ; 16310 Mission Rd., 3950, 3970, 3990, and 4010 W. 163rd St.
Rating:
Categories:
Historic
Asset ID:
f6e6e049-a8b6-4148-a0d0-e2576e358641
Related Portals:
National Register of Historic Places
HIDE METADATA
Copyright