National Park Service
Search NPGallery
Search NPGallery
Explore NPS.gov
×
Copyright Information:
NATIONAL REGISTER DIGITAL ASSETS
DOWNLOAD THIS PDF
DOWNLOAD THIS PDF
HIDE NATIONAL REGISTER ASSETS
Copyright
ASSET METADATA
Title:
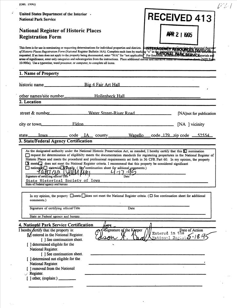
Big 4 Fair Art Hall
National Register Information System ID:
95000621
Applicable Criteria:
ARCHITECTURE/ENGINEERING
EVENT
Architectural Styles:
NO STYLE LISTED
Architects:
Unknown
Areas Of Significance:
ENTERTAINMENT/RECREATION
ARCHITECTURE
Periods Of Significance:
1900-1924
Significant Years:
1911
Resource Type:
BUILDING
Keywords:
1911
Note:
Water St., at Wapello County Regional Fair Grounds
Related Collections:
National Register of Historic Places Collection
Resource Format:
pdf
File Size (bytes):
513835
Date Published:
5/18/1995
Parks:
National Register of Historic Places
Locations:
State: Iowa
County: Wapello County
Eldon ; Water St., at Wapello County Regional Fair Grounds
Rating:
Categories:
Historic
Asset ID:
b00d6b77-2770-435b-9c43-0bd0be42b295
Related Portals:
National Register of Historic Places
HIDE METADATA
Copyright
NATIONAL REGISTER DIGITAL ASSETS
DOWNLOAD THIS PDF
DOWNLOAD THIS PDF
HIDE NATIONAL REGISTER ASSETS
Copyright
ASSET METADATA
Title:
Big 4 Fair Art Hall
National Register Information System ID:
95000621
Applicable Criteria:
ARCHITECTURE/ENGINEERING
EVENT
Architectural Styles:
NO STYLE LISTED
Architects:
Unknown
Areas Of Significance:
ENTERTAINMENT/RECREATION
ARCHITECTURE
Periods Of Significance:
1900-1924
Significant Years:
1911
Resource Type:
BUILDING
Keywords:
1911
Note:
Water St., at Wapello County Regional Fair Grounds
Related Collections:
National Register of Historic Places Collection
Resource Format:
pdf
File Size (bytes):
1003355
Date Published:
5/18/1995
Parks:
National Register of Historic Places
Locations:
State: Iowa
County: Wapello County
Eldon ; Water St., at Wapello County Regional Fair Grounds
Rating:
Categories:
Historic
Asset ID:
d277aaf4-a00c-47e7-a632-a3edec136edd
Related Portals:
National Register of Historic Places
HIDE METADATA
Copyright