National Park Service
Search NPGallery
Search NPGallery
Explore NPS.gov
×
Copyright Information:
NATIONAL REGISTER DIGITAL ASSETS
DOWNLOAD THIS PDF
DOWNLOAD THIS PDF
HIDE NATIONAL REGISTER ASSETS
Copyright
ASSET METADATA
Title:
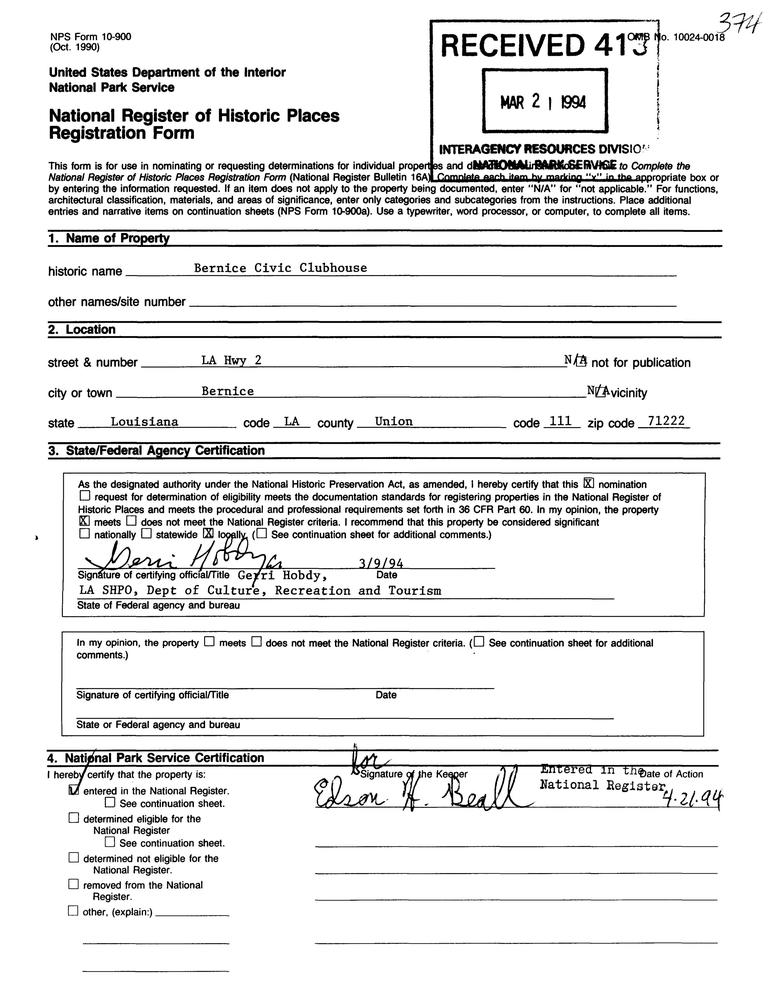
Bernice Civic Clubhouse
National Register Information System ID:
94000374
Applicable Criteria:
EVENT
Architectural Styles:
OTHER
Architects:
Unknown
Areas Of Significance:
SOCIAL HISTORY
Periods Of Significance:
1925-1949
Resource Type:
BUILDING
Note:
LA 2
Related Collections:
National Register of Historic Places Collection
Resource Format:
pdf
File Size (bytes):
1159782
Date Published:
4/21/1994
Parks:
National Register of Historic Places
Locations:
State: Louisiana
County: Union Parish
Bernice ; LA 2
Rating:
Categories:
Historic
Asset ID:
00df3726-1e37-4960-89ae-4815f4706e6e
Related Portals:
National Register of Historic Places
HIDE METADATA
Copyright
NATIONAL REGISTER DIGITAL ASSETS
DOWNLOAD THIS PDF
DOWNLOAD THIS PDF
HIDE NATIONAL REGISTER ASSETS
Copyright
ASSET METADATA
Title:
Bernice Civic Clubhouse
National Register Information System ID:
94000374
Applicable Criteria:
EVENT
Architectural Styles:
OTHER
Architects:
Unknown
Areas Of Significance:
SOCIAL HISTORY
Periods Of Significance:
1925-1949
Resource Type:
BUILDING
Note:
LA 2
Related Collections:
National Register of Historic Places Collection
Resource Format:
pdf
File Size (bytes):
303388
Date Published:
4/21/1994
Parks:
National Register of Historic Places
Locations:
State: Louisiana
County: Union Parish
Bernice ; LA 2
Rating:
Categories:
Historic
Asset ID:
47fee6ef-b2a0-4544-aa6f-e2e3299250aa
Related Portals:
National Register of Historic Places
HIDE METADATA
Copyright