National Park Service
Search NPGallery
Search NPGallery
Explore NPS.gov
×
Copyright Information:
NATIONAL REGISTER DIGITAL ASSETS
DOWNLOAD THIS PDF
DOWNLOAD THIS PDF
HIDE NATIONAL REGISTER ASSETS
Copyright
ASSET METADATA
Title:
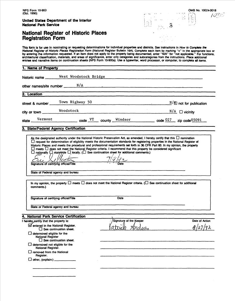
West Woodstock Bridge
National Register Information System ID:
92001038
Multiple Listing:
Metal Truss, Masonry, and Concrete Bridges in Vermont MPS
Applicable Criteria:
EVENT
ARCHITECTURE/ENGINEERING
Architectural Styles:
OTHER
Architects:
Groton Bridge & Manufacturing Co.
Areas Of Significance:
ENGINEERING
TRANSPORTATION
Periods Of Significance:
1900-1924
Significant Years:
1900
Resource Type:
STRUCTURE
Related Collections:
National Register of Historic Places Collection
Resource Format:
pdf
File Size (bytes):
490115
Date Published:
8/27/1992
Parks:
National Register of Historic Places
Locations:
State: Vermont
County: Windsor County
West Woodstock ; Town Hwy. 50 over the Ottauquechee R.
Rating:
Categories:
Historic
Asset ID:
a9a34f18-0c2a-4de6-bf36-db77c5cfb462
Related Portals:
National Register of Historic Places
HIDE METADATA
Copyright
NATIONAL REGISTER DIGITAL ASSETS
DOWNLOAD THIS PDF
DOWNLOAD THIS PDF
HIDE NATIONAL REGISTER ASSETS
Copyright
ASSET METADATA
Title:
West Woodstock Bridge
National Register Information System ID:
92001038
Multiple Listing:
Metal Truss, Masonry, and Concrete Bridges in Vermont MPS
Applicable Criteria:
EVENT
ARCHITECTURE/ENGINEERING
Architectural Styles:
OTHER
Architects:
Groton Bridge & Manufacturing Co.
Areas Of Significance:
ENGINEERING
TRANSPORTATION
Periods Of Significance:
1900-1924
Significant Years:
1900
Resource Type:
STRUCTURE
Related Collections:
National Register of Historic Places Collection
Resource Format:
pdf
File Size (bytes):
404951
Date Published:
8/27/1992
Parks:
National Register of Historic Places
Locations:
State: Vermont
County: Windsor County
West Woodstock ; Town Hwy. 50 over the Ottauquechee R.
Rating:
Categories:
Historic
Asset ID:
e6c30879-835a-418e-b3af-72d3f038dc0e
Related Portals:
National Register of Historic Places
HIDE METADATA
Copyright