National Park Service
Search NPGallery
Search NPGallery
Explore NPS.gov
×
Copyright Information:
NATIONAL REGISTER DIGITAL ASSETS
DOWNLOAD THIS PDF
DOWNLOAD THIS PDF
HIDE NATIONAL REGISTER ASSETS
Copyright
ASSET METADATA
Title:
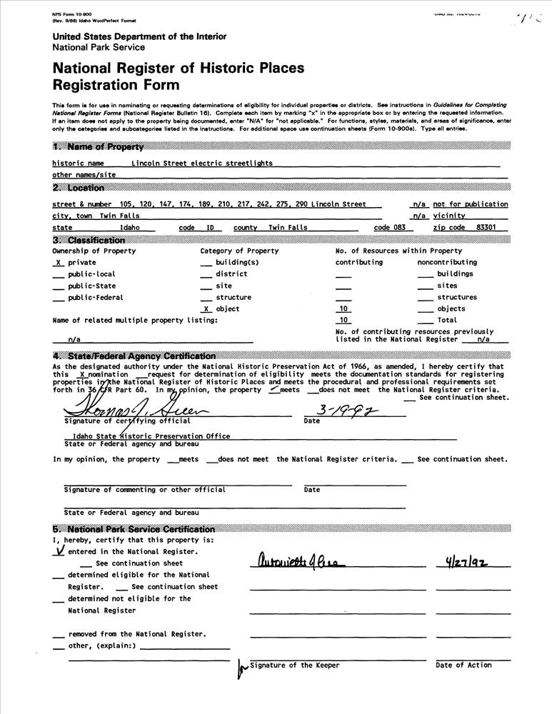
Lincoln Street Electric Streetlights
National Register Information System ID:
92000413
Applicable Criteria:
EVENT
Architectural Styles:
NO STYLE LISTED
Architects:
Cutter,George,Co.
Areas Of Significance:
COMMUNITY PLANNING AND DEVELOPMENT
SCIENCE
Periods Of Significance:
1900-1924
1925-1949
Significant Years:
1920
Resource Type:
OBJECT
Keywords:
cutter,george,co. ; 1920
Note:
105, 120, 147, 174, 189, 210, 217, 242, 275 and 290 Lincoln St.
Related Collections:
National Register of Historic Places Collection
Resource Format:
pdf
File Size (bytes):
727382
Date Published:
4/27/1992
Parks:
National Register of Historic Places
Locations:
State: Idaho
County: Twin Falls County
Twin Falls ; 105, 120, 147, 174, 189, 210, 217, 242, 275 and 290 Lincoln St.
Rating:
Categories:
Historic
Asset ID:
7dd5a7ab-3be0-47a0-a756-11bf6e2920fb
Related Portals:
National Register of Historic Places
HIDE METADATA
Copyright
NATIONAL REGISTER DIGITAL ASSETS
DOWNLOAD THIS PDF
DOWNLOAD THIS PDF
HIDE NATIONAL REGISTER ASSETS
Copyright
ASSET METADATA
Title:
Lincoln Street Electric Streetlights
National Register Information System ID:
92000413
Applicable Criteria:
EVENT
Architectural Styles:
NO STYLE LISTED
Architects:
Cutter,George,Co.
Areas Of Significance:
COMMUNITY PLANNING AND DEVELOPMENT
SCIENCE
Periods Of Significance:
1900-1924
1925-1949
Significant Years:
1920
Resource Type:
OBJECT
Keywords:
cutter,george,co. ; 1920
Note:
105, 120, 147, 174, 189, 210, 217, 242, 275 and 290 Lincoln St.
Related Collections:
National Register of Historic Places Collection
Resource Format:
pdf
File Size (bytes):
178432
Date Published:
4/27/1992
Parks:
National Register of Historic Places
Locations:
State: Idaho
County: Twin Falls County
Twin Falls ; 105, 120, 147, 174, 189, 210, 217, 242, 275 and 290 Lincoln St.
Rating:
Categories:
Historic
Asset ID:
e4b69e2f-c626-4a02-8259-4ed91127b357
Related Portals:
National Register of Historic Places
HIDE METADATA
Copyright