National Park Service
Search NPGallery
Search NPGallery
Explore NPS.gov
×
Copyright Information:
NATIONAL REGISTER DIGITAL ASSETS
DOWNLOAD THIS PDF
DOWNLOAD THIS PDF
HIDE NATIONAL REGISTER ASSETS
Copyright
ASSET METADATA
Title:
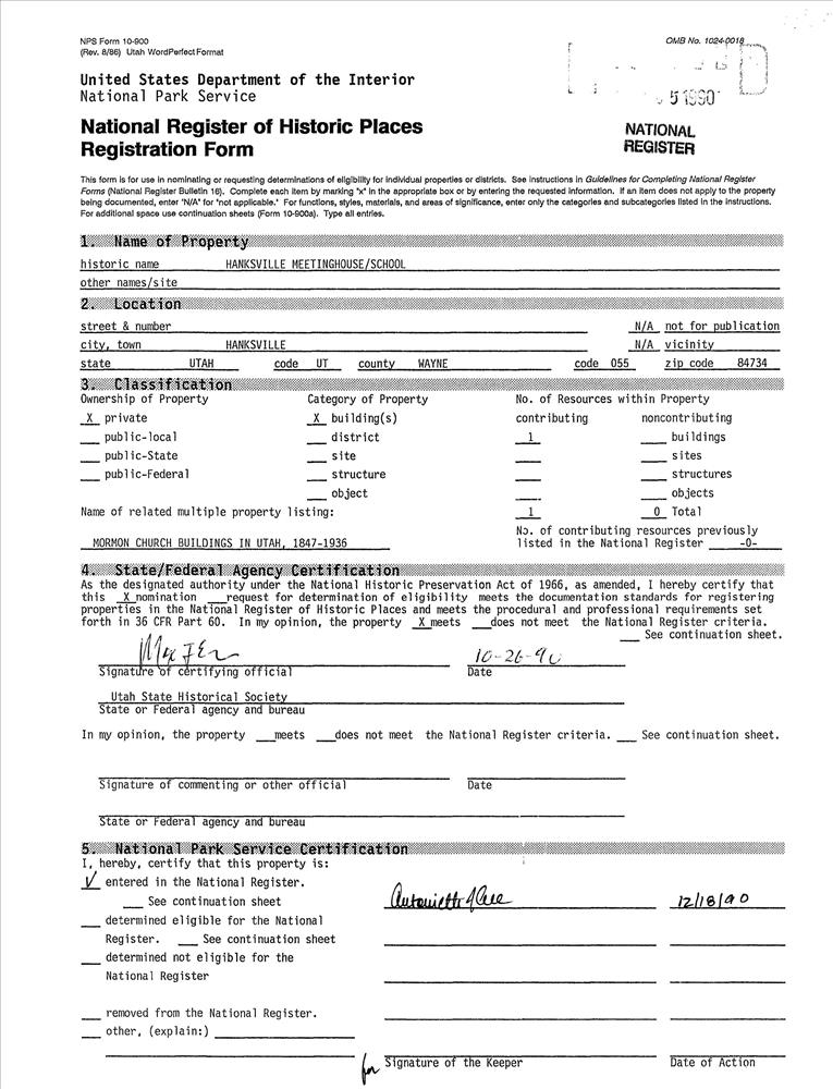
Hanksville Meetinghouse--School
National Register Information System ID:
90001825
Multiple Listing:
Mormon Church Buildings in Utah MPS
Applicable Criteria:
EVENT
ARCHITECTURE/ENGINEERING
Architectural Styles:
OTHER
Architects:
Weber,Frank J.
Areas Of Significance:
EDUCATION
POLITICS/GOVERNMENT
ARCHITECTURE
RELIGION
Periods Of Significance:
1900-1924
1925-1949
Significant Years:
1911
1914
Resource Type:
BUILDING
Keywords:
weber,frank j. ; 1911 ; 1914
Note:
Sawmill Basin Rd.
Related Collections:
National Register of Historic Places Collection
Resource Format:
pdf
File Size (bytes):
555783
Date Published:
12/18/1990
Parks:
National Register of Historic Places
Locations:
State: Utah
County: Wayne County
Hanksville ; Sawmill Basin Rd.
Rating:
Categories:
Historic
Asset ID:
7993485a-ef31-4b53-aadf-476926bf7606
Related Portals:
National Register of Historic Places
HIDE METADATA
Copyright
NATIONAL REGISTER DIGITAL ASSETS
DOWNLOAD THIS PDF
DOWNLOAD THIS PDF
HIDE NATIONAL REGISTER ASSETS
Copyright
ASSET METADATA
Title:
Hanksville Meetinghouse--School
National Register Information System ID:
90001825
Multiple Listing:
Mormon Church Buildings in Utah MPS
Applicable Criteria:
EVENT
ARCHITECTURE/ENGINEERING
Architectural Styles:
OTHER
Architects:
Weber,Frank J.
Areas Of Significance:
EDUCATION
POLITICS/GOVERNMENT
ARCHITECTURE
RELIGION
Periods Of Significance:
1900-1924
1925-1949
Significant Years:
1911
1914
Resource Type:
BUILDING
Keywords:
weber,frank j. ; 1911 ; 1914
Note:
Sawmill Basin Rd.
Related Collections:
National Register of Historic Places Collection
Resource Format:
pdf
File Size (bytes):
1051054
Date Published:
12/18/1990
Parks:
National Register of Historic Places
Locations:
State: Utah
County: Wayne County
Hanksville ; Sawmill Basin Rd.
Rating:
Categories:
Historic
Asset ID:
de9cc7f6-0f35-4380-aba6-f73482a7280a
Related Portals:
National Register of Historic Places
HIDE METADATA
Copyright