National Park Service
Search NPGallery
Search NPGallery
Explore NPS.gov
×
Copyright Information:
NATIONAL REGISTER DIGITAL ASSETS
DOWNLOAD THIS PDF
DOWNLOAD THIS PDF
HIDE NATIONAL REGISTER ASSETS
Copyright
ASSET METADATA
Title:
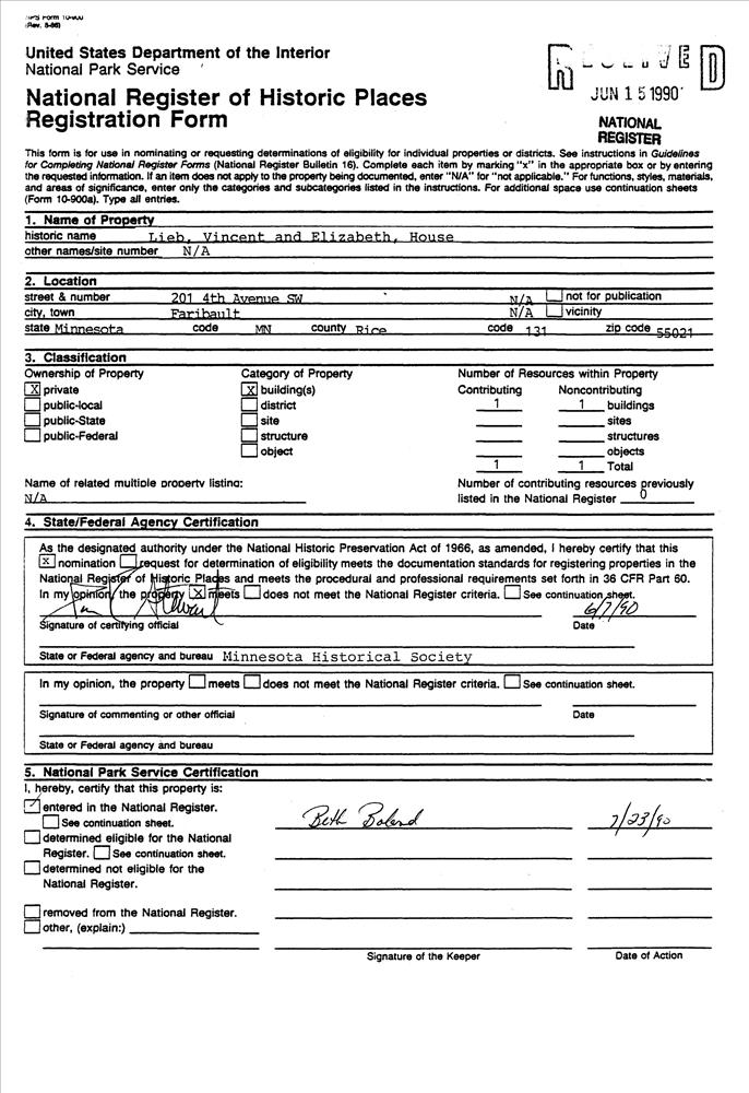
Lieb, Vincent and Elizabeth, House
National Register Information System ID:
90001093
Applicable Criteria:
ARCHITECTURE/ENGINEERING
Architectural Styles:
OTHER
Architects:
Unknown
Areas Of Significance:
ARCHITECTURE
Periods Of Significance:
1850-1874
Significant Years:
1862
1930
Resource Type:
BUILDING
Keywords:
1862 ; 1930
Note:
201 4th Ave. SW.
Related Collections:
National Register of Historic Places Collection
Resource Format:
pdf
File Size (bytes):
1107692
Date Published:
7/23/1990
Parks:
National Register of Historic Places
Locations:
State: Minnesota
County: Rice County
Faribault ; 201 4th Ave. SW.
Rating:
Categories:
Historic
Asset ID:
3682f0b5-ca2d-4904-a415-d4032686ebdf
Related Portals:
National Register of Historic Places
HIDE METADATA
Copyright
NATIONAL REGISTER DIGITAL ASSETS
DOWNLOAD THIS PDF
DOWNLOAD THIS PDF
HIDE NATIONAL REGISTER ASSETS
Copyright
ASSET METADATA
Title:
Lieb, Vincent and Elizabeth, House
National Register Information System ID:
90001093
Applicable Criteria:
ARCHITECTURE/ENGINEERING
Architectural Styles:
OTHER
Architects:
Unknown
Areas Of Significance:
ARCHITECTURE
Periods Of Significance:
1850-1874
Significant Years:
1862
1930
Resource Type:
BUILDING
Keywords:
1862 ; 1930
Note:
201 4th Ave. SW.
Related Collections:
National Register of Historic Places Collection
Resource Format:
pdf
File Size (bytes):
454780
Date Published:
7/23/1990
Parks:
National Register of Historic Places
Locations:
State: Minnesota
County: Rice County
Faribault ; 201 4th Ave. SW.
Rating:
Categories:
Historic
Asset ID:
ca3fdf00-8e78-4a7b-9b9c-c9d85664db04
Related Portals:
National Register of Historic Places
HIDE METADATA
Copyright