National Park Service
Search NPGallery
Search NPGallery
Explore NPS.gov
×
Copyright Information:
NATIONAL REGISTER DIGITAL ASSETS
DOWNLOAD THIS PDF
DOWNLOAD THIS PDF
HIDE NATIONAL REGISTER ASSETS
Copyright
ASSET METADATA
Title:
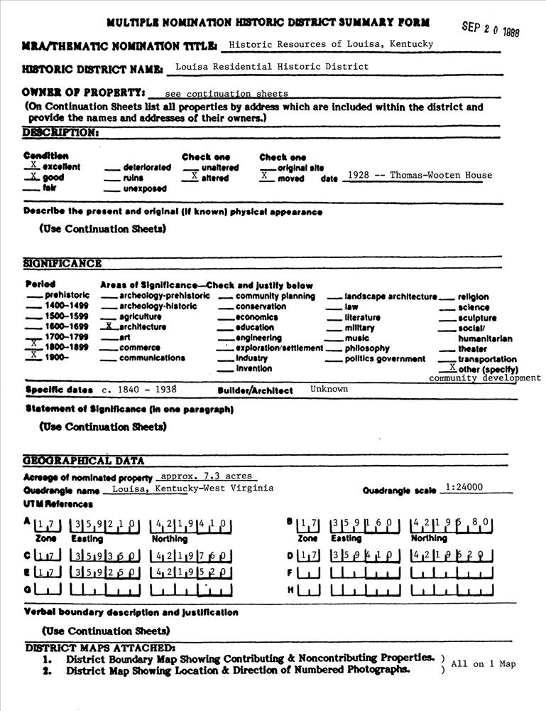
Louisa Residential Historic District
National Register Information System ID:
88002040
Multiple Listing:
Louisa MRA
Applicable Criteria:
ARCHITECTURE/ENGINEERING
Architectural Styles:
COLONIAL REVIVAL
QUEEN ANNE
ROMANESQUE
Architects:
Unknown
Areas Of Significance:
ARCHITECTURE
Periods Of Significance:
1900-1924
1875-1899
1850-1874
1825-1849
1925-1949
Resource Type:
DISTRICT
Note:
Roughly bounded by Perry, Lock, Madison and S. Lady Washington Sts.
Related Collections:
National Register of Historic Places Collection
Resource Format:
pdf
File Size (bytes):
2209928
Date Published:
11/1/1988
Parks:
National Register of Historic Places
Locations:
State: Kentucky
County: Lawrence County
Louisa ; Roughly bounded by Perry, Lock, Madison and S. Lady Washington Sts.
Rating:
Categories:
Historic
Asset ID:
7df1ebed-a427-4da8-bbec-add93fa97b3a
Related Portals:
National Register of Historic Places
HIDE METADATA
Copyright
NATIONAL REGISTER DIGITAL ASSETS
DOWNLOAD THIS PDF
DOWNLOAD THIS PDF
HIDE NATIONAL REGISTER ASSETS
Copyright
ASSET METADATA
Title:
Louisa Residential Historic District
National Register Information System ID:
88002040
Multiple Listing:
Louisa MRA
Applicable Criteria:
ARCHITECTURE/ENGINEERING
Architectural Styles:
COLONIAL REVIVAL
QUEEN ANNE
ROMANESQUE
Architects:
Unknown
Areas Of Significance:
ARCHITECTURE
Periods Of Significance:
1900-1924
1875-1899
1850-1874
1825-1849
1925-1949
Resource Type:
DISTRICT
Note:
Roughly bounded by Perry, Lock, Madison and S. Lady Washington Sts.
Related Collections:
National Register of Historic Places Collection
Resource Format:
pdf
File Size (bytes):
1497749
Date Published:
11/1/1988
Parks:
National Register of Historic Places
Locations:
State: Kentucky
County: Lawrence County
Louisa ; Roughly bounded by Perry, Lock, Madison and S. Lady Washington Sts.
Rating:
Categories:
Historic
Asset ID:
a31d9bc4-78d2-4a88-ad04-d98857fd320f
Related Portals:
National Register of Historic Places
HIDE METADATA
Copyright