National Park Service
Search NPGallery
Search NPGallery
Explore NPS.gov
×
Copyright Information:
NATIONAL REGISTER DIGITAL ASSETS
DOWNLOAD THIS PDF
DOWNLOAD THIS PDF
HIDE NATIONAL REGISTER ASSETS
Copyright
ASSET METADATA
Title:
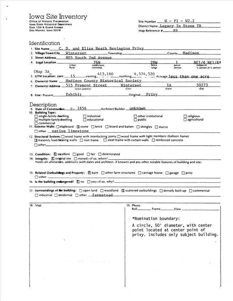
Bevington, C. D. and Eliza Heath, Privy
National Register Information System ID:
87001669
Multiple Listing:
Legacy in Stone: The Settlement Era of Madison County, Iowa TR
Applicable Criteria:
EVENT
ARCHITECTURE/ENGINEERING
Architectural Styles:
NO STYLE LISTED
Architects:
Unknown
Areas Of Significance:
EXPLORATION/SETTLEMENT
ARCHITECTURE
Periods Of Significance:
1850-1874
Significant Years:
1856
Resource Type:
BUILDING
Keywords:
1856
Note:
805 S. Second Ave.
Related Collections:
National Register of Historic Places Collection
Resource Format:
pdf
File Size (bytes):
173963
Date Published:
9/29/1987
Parks:
National Register of Historic Places
Locations:
State: Iowa
County: Madison County
Winterset ; 805 S. Second Ave.
Rating:
Categories:
Historic
Asset ID:
536fb54c-ebc2-4c16-854f-ba2819d6aea2
Related Portals:
National Register of Historic Places
HIDE METADATA
Copyright
NATIONAL REGISTER DIGITAL ASSETS
DOWNLOAD THIS PDF
DOWNLOAD THIS PDF
HIDE NATIONAL REGISTER ASSETS
Copyright
ASSET METADATA
Title:
Bevington, C. D. and Eliza Heath, Privy
National Register Information System ID:
87001669
Multiple Listing:
Legacy in Stone: The Settlement Era of Madison County, Iowa TR
Applicable Criteria:
EVENT
ARCHITECTURE/ENGINEERING
Architectural Styles:
NO STYLE LISTED
Architects:
Unknown
Areas Of Significance:
EXPLORATION/SETTLEMENT
ARCHITECTURE
Periods Of Significance:
1850-1874
Significant Years:
1856
Resource Type:
BUILDING
Keywords:
1856
Note:
805 S. Second Ave.
Related Collections:
National Register of Historic Places Collection
Resource Format:
pdf
File Size (bytes):
67348
Date Published:
9/29/1987
Parks:
National Register of Historic Places
Locations:
State: Iowa
County: Madison County
Winterset ; 805 S. Second Ave.
Rating:
Categories:
Historic
Asset ID:
ed8b5ee1-a6e9-4298-871b-238869302491
Related Portals:
National Register of Historic Places
HIDE METADATA
Copyright