National Park Service
Search NPGallery
Search NPGallery
Explore NPS.gov
×
Copyright Information:
NATIONAL REGISTER DIGITAL ASSETS
DOWNLOAD THIS PDF
DOWNLOAD THIS PDF
HIDE NATIONAL REGISTER ASSETS
Copyright
ASSET METADATA
Title:
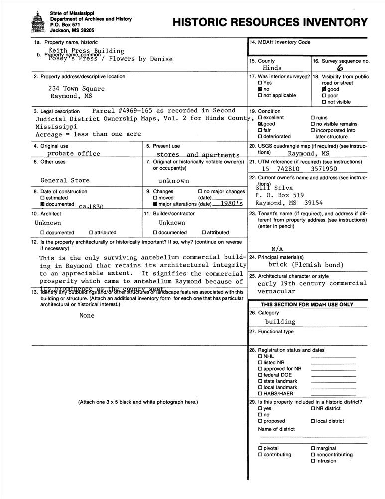
Keith Press Building
National Register Information System ID:
86001708
Multiple Listing:
Raymond and Vicinity MRA
Applicable Criteria:
ARCHITECTURE/ENGINEERING
Architectural Styles:
NO STYLE LISTED
Architects:
Unknown
Areas Of Significance:
ARCHITECTURE
Periods Of Significance:
1825-1849
Significant Years:
1830
Resource Type:
BUILDING
Keywords:
1830
Note:
234 Town Sq.
Related Collections:
National Register of Historic Places Collection
Resource Format:
pdf
File Size (bytes):
95337
Date Published:
7/15/1986
Parks:
National Register of Historic Places
Locations:
State: Mississippi
County: Hinds County
Raymond ; 234 Town Sq.
Rating:
Categories:
Historic
Asset ID:
3555affc-08be-4f0f-994e-213ed61125da
Related Portals:
National Register of Historic Places
HIDE METADATA
Copyright
NATIONAL REGISTER DIGITAL ASSETS
DOWNLOAD THIS PDF
DOWNLOAD THIS PDF
HIDE NATIONAL REGISTER ASSETS
Copyright
ASSET METADATA
Title:
Keith Press Building
National Register Information System ID:
86001708
Multiple Listing:
Raymond and Vicinity MRA
Applicable Criteria:
ARCHITECTURE/ENGINEERING
Architectural Styles:
NO STYLE LISTED
Architects:
Unknown
Areas Of Significance:
ARCHITECTURE
Periods Of Significance:
1825-1849
Significant Years:
1830
Resource Type:
BUILDING
Keywords:
1830
Note:
234 Town Sq.
Related Collections:
National Register of Historic Places Collection
Resource Format:
pdf
File Size (bytes):
272730
Date Published:
7/15/1986
Parks:
National Register of Historic Places
Locations:
State: Mississippi
County: Hinds County
Raymond ; 234 Town Sq.
Rating:
Categories:
Historic
Asset ID:
c54200a4-6e8c-4e00-8147-0223fdd4eead
Related Portals:
National Register of Historic Places
HIDE METADATA
Copyright