National Park Service
Search NPGallery
Search NPGallery
Explore NPS.gov
×
Copyright Information:
NATIONAL REGISTER DIGITAL ASSETS
DOWNLOAD THIS PDF
DOWNLOAD THIS PDF
HIDE NATIONAL REGISTER ASSETS
Copyright
ASSET METADATA
Title:
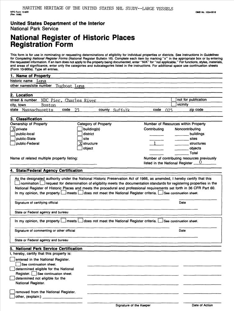
LUNA (tugboat)
National Register Information System ID:
83004099
Applicable Criteria:
EVENT
ARCHITECTURE/ENGINEERING
Architects:
Alden,John G., & Co.
Davis,M.M. & Sons
Areas Of Significance:
COMMERCE
MILITARY
ENGINEERING
TRANSPORTATION
ARCHITECTURE
Periods Of Significance:
1925-1949
Significant Years:
1930
Resource Type:
STRUCTURE
Keywords:
alden,john g.,& co. ; davis,m.m. & sons ; 1930
Note:
NDC Pier, Charles River
Related Collections:
National Register of Historic Places Collection
Resource Format:
pdf
File Size (bytes):
399284
Date Published:
10/6/1983
Parks:
National Register of Historic Places
Locations:
State: Massachusetts
County: Suffolk County
Boston ; NDC Pier, Charles River
Rating:
Categories:
Historic
Asset ID:
045db77f-98aa-4426-9073-f4454d3e07ff
Related Portals:
National Register of Historic Places
HIDE METADATA
Copyright
NATIONAL REGISTER DIGITAL ASSETS
DOWNLOAD THIS PDF
DOWNLOAD THIS PDF
HIDE NATIONAL REGISTER ASSETS
Copyright
ASSET METADATA
Title:
LUNA (tugboat)
National Register Information System ID:
83004099
Applicable Criteria:
EVENT
ARCHITECTURE/ENGINEERING
Architects:
Alden,John G., & Co.
Davis,M.M. & Sons
Areas Of Significance:
COMMERCE
MILITARY
ENGINEERING
TRANSPORTATION
ARCHITECTURE
Periods Of Significance:
1925-1949
Significant Years:
1930
Resource Type:
STRUCTURE
Keywords:
alden,john g.,& co. ; davis,m.m. & sons ; 1930
Note:
NDC Pier, Charles River
Related Collections:
National Register of Historic Places Collection
Resource Format:
pdf
File Size (bytes):
384428
Date Published:
10/6/1983
Parks:
National Register of Historic Places
Locations:
State: Massachusetts
County: Suffolk County
Boston ; NDC Pier, Charles River
Rating:
Categories:
Historic
Asset ID:
a6fed368-15a0-4dc4-a226-d4f7db6055d2
Related Portals:
National Register of Historic Places
HIDE METADATA
Copyright
ALBUMS IN WHICH THIS ASSET APPEARS
Album -
118
Photos
Maritime National Historic Landmarks: Large Vessels
HIDE ALBUMS