National Park Service
Search NPGallery
Search NPGallery
Explore NPS.gov
×
Copyright Information:
NATIONAL REGISTER DIGITAL ASSETS
DOWNLOAD THIS PDF
DOWNLOAD THIS PDF
HIDE NATIONAL REGISTER ASSETS
Copyright
ASSET METADATA
Title:
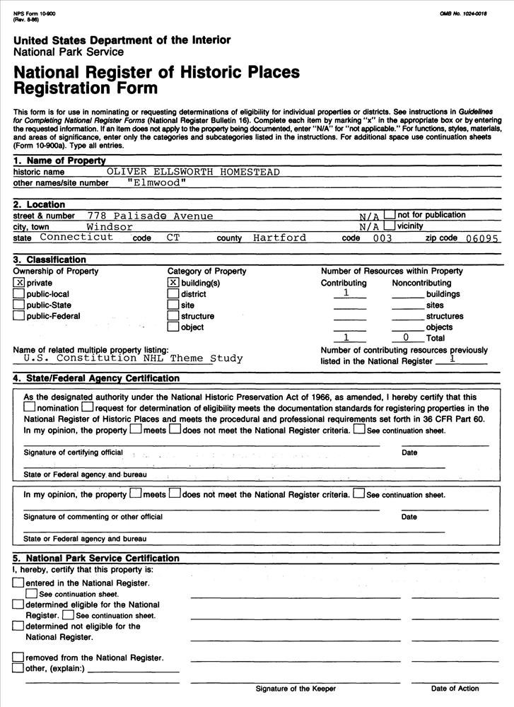
Ellsworth, Oliver, Homestead
National Register Information System ID:
70000707
Applicable Criteria:
EVENT
ARCHITECTURE/ENGINEERING
PERSON
Architectural Styles:
GEORGIAN
Architects:
Denslow,Samuel
Hayden,Thomas
Areas Of Significance:
LAW
POLITICS/GOVERNMENT
ARCHITECTURE
Periods Of Significance:
1700-1749
1800-1824
1825-1849
Significant Years:
1740
1783
Significant Names:
Ellsworth,Oliver
Resource Type:
BUILDING
Related Collections:
National Register of Historic Places Collection
Resource Format:
pdf
File Size (bytes):
354535
Date Published:
10/6/1970
Parks:
National Register of Historic Places
Locations:
State: Connecticut
County: Hartford County
Windsor ; 778 Palisado Ave.
Rating:
Categories:
Historic
Asset ID:
6cf46415-0118-444b-b03f-688f22dc5898
Related Portals:
National Register of Historic Places
HIDE METADATA
Copyright
NATIONAL REGISTER DIGITAL ASSETS
DOWNLOAD THIS PDF
DOWNLOAD THIS PDF
HIDE NATIONAL REGISTER ASSETS
Copyright
ASSET METADATA
Title:
Ellsworth, Oliver, Homestead
National Register Information System ID:
70000707
Applicable Criteria:
EVENT
ARCHITECTURE/ENGINEERING
PERSON
Architectural Styles:
GEORGIAN
Architects:
Denslow,Samuel
Hayden,Thomas
Areas Of Significance:
LAW
POLITICS/GOVERNMENT
ARCHITECTURE
Periods Of Significance:
1700-1749
1800-1824
1825-1849
Significant Years:
1740
1783
Significant Names:
Ellsworth,Oliver
Resource Type:
BUILDING
Related Collections:
National Register of Historic Places Collection
Resource Format:
pdf
File Size (bytes):
3223372
Date Published:
10/6/1970
Parks:
National Register of Historic Places
Locations:
State: Connecticut
County: Hartford County
Windsor ; 778 Palisado Ave.
Rating:
Categories:
Historic
Asset ID:
c0a079aa-c2e6-4ab7-9d02-8d4c733ccf63
Related Portals:
National Register of Historic Places
HIDE METADATA
Copyright