National Park Service
Search NPGallery
Search NPGallery
Explore NPS.gov
×
Copyright Information:
NATIONAL REGISTER DIGITAL ASSETS
DOWNLOAD THIS PDF
DOWNLOAD THIS PDF
HIDE NATIONAL REGISTER ASSETS
Copyright
ASSET METADATA
Title:
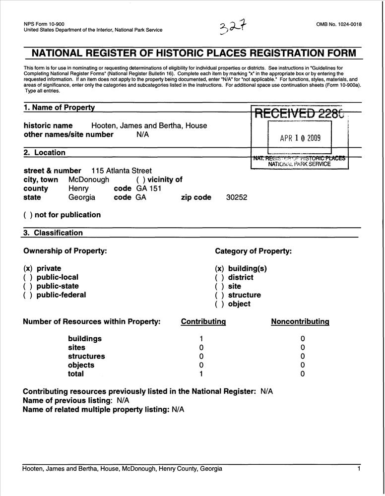
Hooten, James and Bertha, House
National Register Information System ID:
09000327
Applicable Criteria:
ARCHITECTURE/ENGINEERING
Architectural Styles:
GEORGIAN
OTHER
Areas Of Significance:
ARCHITECTURE
Periods Of Significance:
1900-1924
1925-1949
Significant Years:
1911
1928
Resource Type:
BUILDING
Related Collections:
National Register of Historic Places Collection
Resource Format:
pdf
File Size (bytes):
333826
Date Published:
5/20/2009
Parks:
National Register of Historic Places
Locations:
State: Georgia
County: Henry County
McDonough ; 115 Atlanta St.
Rating:
Categories:
Historic
Asset ID:
041d3cd6-50a3-4c6a-bf45-51be2bd5174a
Related Portals:
National Register of Historic Places
HIDE METADATA
Copyright
NATIONAL REGISTER DIGITAL ASSETS
DOWNLOAD THIS PDF
DOWNLOAD THIS PDF
HIDE NATIONAL REGISTER ASSETS
Copyright
ASSET METADATA
Title:
Hooten, James and Bertha, House
National Register Information System ID:
09000327
Applicable Criteria:
ARCHITECTURE/ENGINEERING
Architectural Styles:
GEORGIAN
OTHER
Areas Of Significance:
ARCHITECTURE
Periods Of Significance:
1900-1924
1925-1949
Significant Years:
1911
1928
Resource Type:
BUILDING
Related Collections:
National Register of Historic Places Collection
Resource Format:
pdf
File Size (bytes):
5333588
Date Published:
5/20/2009
Parks:
National Register of Historic Places
Locations:
State: Georgia
County: Henry County
McDonough ; 115 Atlanta St.
Rating:
Categories:
Historic
Asset ID:
fbf4fcc9-4cdc-498a-a12b-f9bec99d1528
Related Portals:
National Register of Historic Places
HIDE METADATA
Copyright