National Park Service
Search NPGallery
Search NPGallery
Explore NPS.gov
×
Copyright Information:
NATIONAL REGISTER DIGITAL ASSETS
DOWNLOAD THIS PDF
DOWNLOAD THIS PDF
HIDE NATIONAL REGISTER ASSETS
Copyright
ASSET METADATA
Title:
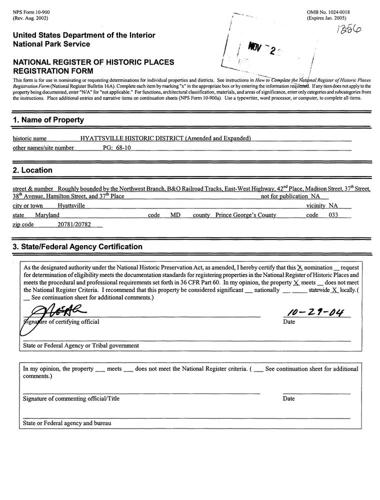
Hyattsville Historic District (Boundary Increase)
National Register Information System ID:
04001356
Applicable Criteria:
EVENT
ARCHITECTURE/ENGINEERING
Architectural Styles:
QUEEN ANNE
LATE 19TH AND 20TH CENTURY REVIVALS
Architects:
Kea, Paul H. & Cutler, Howard
et.al.
Areas Of Significance:
ARCHITECTURE
COMMUNITY PLANNING AND DEVELOPMENT
Periods Of Significance:
1850-1874
1875-1899
1900-1924
1925-1949
1950-1974
Significant Years:
1873
1886
Resource Type:
DISTRICT
Related Collections:
National Register of Historic Places Collection
Resource Format:
pdf
File Size (bytes):
792774
Date Published:
12/15/2004
Parks:
National Register of Historic Places
Locations:
State: Maryland
County: Prince George's County
Hyattsville ; Roughly bounded by B&O RR Tracks, Ewast-West Hwy,42nd Pl.,Madison,37th,38th Ave, Hamilton, and 37th Pl.
Rating:
Categories:
Historic
Asset ID:
9cd9b579-54f1-4542-a09d-b50660c87987
Related Portals:
National Register of Historic Places
HIDE METADATA
Copyright
NATIONAL REGISTER DIGITAL ASSETS
DOWNLOAD THIS PDF
DOWNLOAD THIS PDF
HIDE NATIONAL REGISTER ASSETS
Copyright
ASSET METADATA
Title:
Hyattsville Historic District (Boundary Increase)
National Register Information System ID:
04001356
Applicable Criteria:
EVENT
ARCHITECTURE/ENGINEERING
Architectural Styles:
QUEEN ANNE
LATE 19TH AND 20TH CENTURY REVIVALS
Architects:
Kea, Paul H. & Cutler, Howard
et.al.
Areas Of Significance:
ARCHITECTURE
COMMUNITY PLANNING AND DEVELOPMENT
Periods Of Significance:
1850-1874
1875-1899
1900-1924
1925-1949
1950-1974
Significant Years:
1873
1886
Resource Type:
DISTRICT
Related Collections:
National Register of Historic Places Collection
Resource Format:
pdf
File Size (bytes):
4027079
Date Published:
12/15/2004
Parks:
National Register of Historic Places
Locations:
State: Maryland
County: Prince George's County
Hyattsville ; Roughly bounded by B&O RR Tracks, Ewast-West Hwy,42nd Pl.,Madison,37th,38th Ave, Hamilton, and 37th Pl.
Rating:
Categories:
Historic
Asset ID:
da838dec-c6c3-4c5e-845b-67f5aab7868a
Related Portals:
National Register of Historic Places
HIDE METADATA
Copyright