National Park Service
Search NPGallery
Search NPGallery
Explore NPS.gov
×
Copyright Information:
NATIONAL REGISTER DIGITAL ASSETS
DOWNLOAD THIS PDF
DOWNLOAD THIS PDF
HIDE NATIONAL REGISTER ASSETS
Copyright
ASSET METADATA
Title:
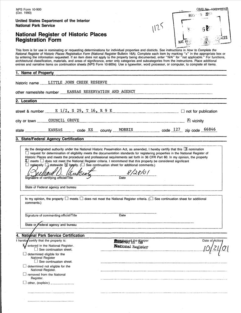
Little John Creek Reserve
National Register Information System ID:
01001125
Applicable Criteria:
EVENT
Architectural Styles:
CLASSICAL REVIVAL
OTHER
Architects:
Stevens, Robert S.
Areas Of Significance:
NATIVE AMERICAN
TRANSPORTATION
Periods Of Significance:
1825-1849
1850-1874
Significant Years:
1861
1862
1872
Resource Type:
SITE
Related Collections:
National Register of Historic Places Collection
Resource Format:
pdf
File Size (bytes):
443264
Date Published:
10/21/2001
Parks:
National Register of Historic Places
Locations:
State: Kansas
County: Morris County
Council Grove ; E. 1/2, Sec. 29, T 16 S, R 9 E
Rating:
Categories:
Historic
Asset ID:
1bff247e-0569-40c3-9ab0-7746319c0797
Related Portals:
National Register of Historic Places
HIDE METADATA
Copyright
NATIONAL REGISTER DIGITAL ASSETS
DOWNLOAD THIS PDF
DOWNLOAD THIS PDF
HIDE NATIONAL REGISTER ASSETS
Copyright
ASSET METADATA
Title:
Little John Creek Reserve
National Register Information System ID:
01001125
Applicable Criteria:
EVENT
Architectural Styles:
CLASSICAL REVIVAL
OTHER
Architects:
Stevens, Robert S.
Areas Of Significance:
NATIVE AMERICAN
TRANSPORTATION
Periods Of Significance:
1825-1849
1850-1874
Significant Years:
1861
1862
1872
Resource Type:
SITE
Related Collections:
National Register of Historic Places Collection
Resource Format:
pdf
File Size (bytes):
4168338
Date Published:
10/21/2001
Parks:
National Register of Historic Places
Locations:
State: Kansas
County: Morris County
Council Grove ; E. 1/2, Sec. 29, T 16 S, R 9 E
Rating:
Categories:
Historic
Asset ID:
25a4edf9-cbd7-4167-a5e6-a496fc92f479
Related Portals:
National Register of Historic Places
HIDE METADATA
Copyright