National Park Service
Search NPGallery
Search NPGallery
Explore NPS.gov
×
Copyright Information:
NATIONAL REGISTER DIGITAL ASSETS
DOWNLOAD THIS PDF
DOWNLOAD THIS PDF
HIDE NATIONAL REGISTER ASSETS
Copyright
ASSET METADATA
Title:
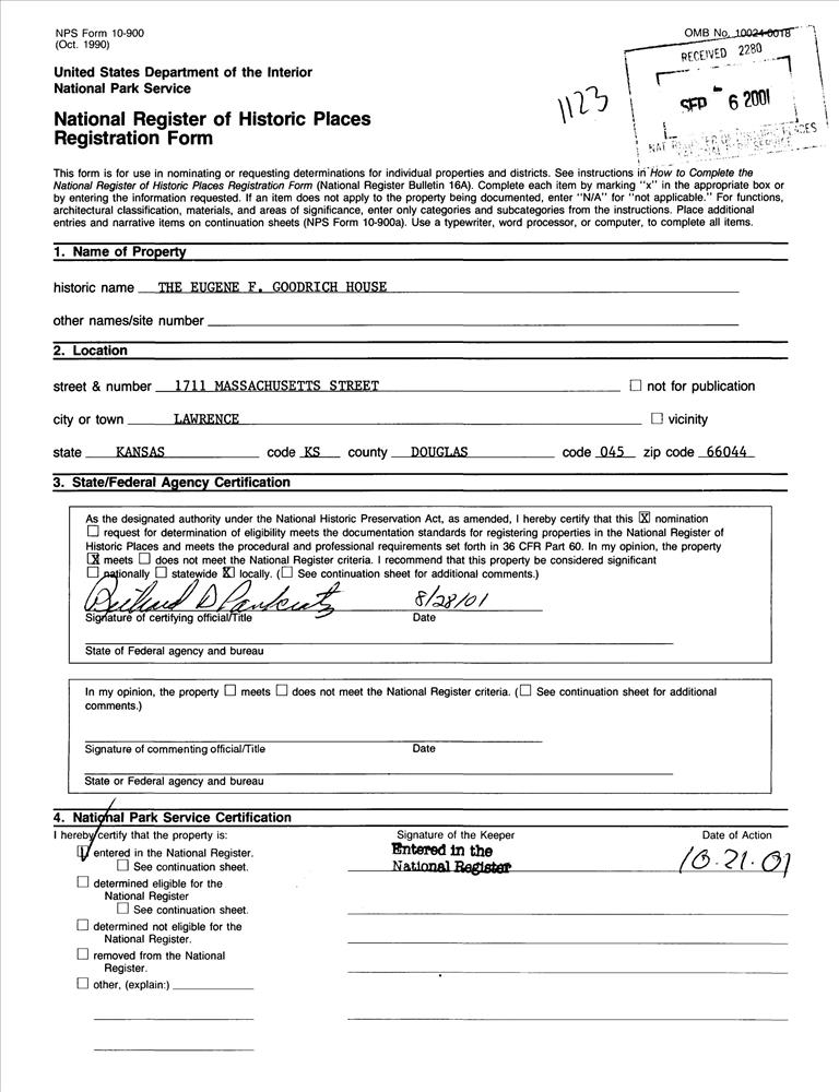
Goodrich, Eugene F., House
National Register Information System ID:
01001123
Multiple Listing:
Lawrence, Kansas MPS
Applicable Criteria:
ARCHITECTURE/ENGINEERING
Architectural Styles:
QUEEN ANNE
Areas Of Significance:
ARCHITECTURE
Periods Of Significance:
1875-1899
Significant Years:
1890
Resource Type:
BUILDING
Related Collections:
National Register of Historic Places Collection
Resource Format:
pdf
File Size (bytes):
1469831
Date Published:
10/21/2001
Parks:
National Register of Historic Places
Locations:
State: Kansas
County: Douglas County
Lawrence ; 1711 Massachusetts St.
Rating:
Categories:
Historic
Asset ID:
4ac9a735-5e73-4739-9795-8dd2f9ecd352
Related Portals:
National Register of Historic Places
HIDE METADATA
Copyright
NATIONAL REGISTER DIGITAL ASSETS
DOWNLOAD THIS PDF
DOWNLOAD THIS PDF
HIDE NATIONAL REGISTER ASSETS
Copyright
ASSET METADATA
Title:
Goodrich, Eugene F., House
National Register Information System ID:
01001123
Multiple Listing:
Lawrence, Kansas MPS
Applicable Criteria:
ARCHITECTURE/ENGINEERING
Architectural Styles:
QUEEN ANNE
Areas Of Significance:
ARCHITECTURE
Periods Of Significance:
1875-1899
Significant Years:
1890
Resource Type:
BUILDING
Related Collections:
National Register of Historic Places Collection
Resource Format:
pdf
File Size (bytes):
402087
Date Published:
10/21/2001
Parks:
National Register of Historic Places
Locations:
State: Kansas
County: Douglas County
Lawrence ; 1711 Massachusetts St.
Rating:
Categories:
Historic
Asset ID:
d27bfb2e-a6a0-4ddc-a6e8-6f2a2a348c74
Related Portals:
National Register of Historic Places
HIDE METADATA
Copyright