National Park Service
Search NPGallery
Search NPGallery
Explore NPS.gov
×
Copyright Information:
NATIONAL REGISTER DIGITAL ASSETS
DOWNLOAD THIS PDF
DOWNLOAD THIS PDF
HIDE NATIONAL REGISTER ASSETS
Copyright
ASSET METADATA
Title:
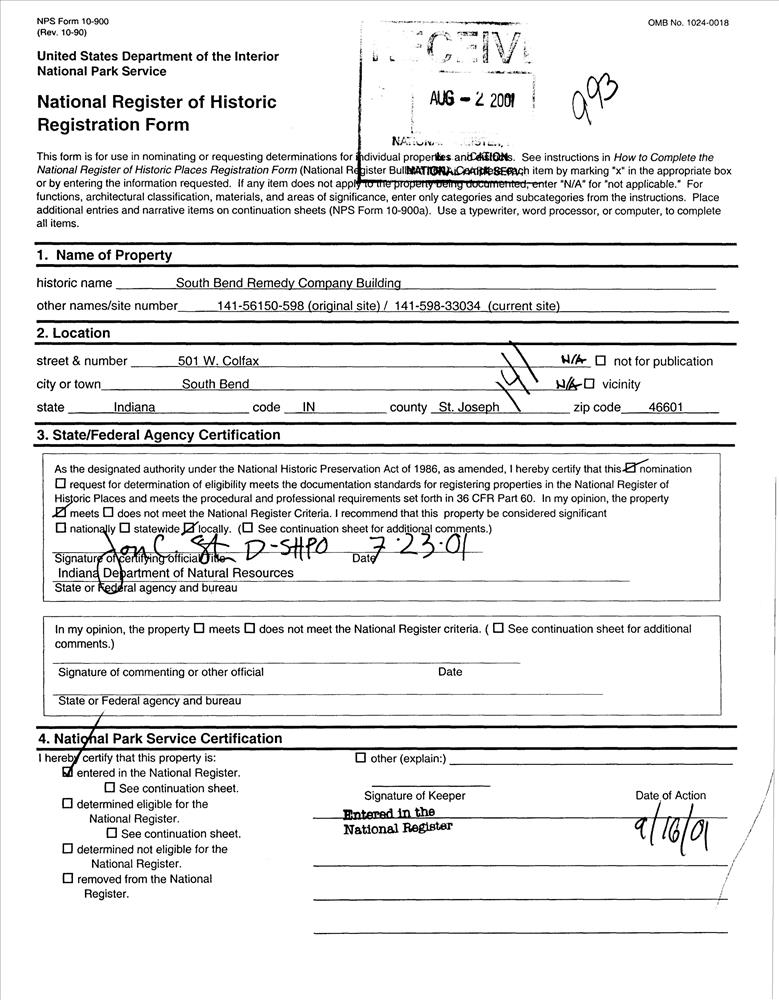
South Bend Remedy Company Building
National Register Information System ID:
01000993
Applicable Criteria:
ARCHITECTURE/ENGINEERING
Architectural Styles:
CLASSICAL REVIVAL
QUEEN ANNE
Areas Of Significance:
ARCHITECTURE
Periods Of Significance:
1875-1899
Significant Years:
1895
Resource Type:
BUILDING
Related Collections:
National Register of Historic Places Collection
Resource Format:
pdf
File Size (bytes):
3856057
Date Published:
9/16/2001
Parks:
National Register of Historic Places
Locations:
State: Indiana
County: St. Joseph County
South Bend ; 501 W. Colfax
Rating:
Categories:
Historic
Asset ID:
2103b5bc-4b5a-4431-91c2-b364b4fa0b38
Related Portals:
National Register of Historic Places
HIDE METADATA
Copyright
NATIONAL REGISTER DIGITAL ASSETS
DOWNLOAD THIS PDF
DOWNLOAD THIS PDF
HIDE NATIONAL REGISTER ASSETS
Copyright
ASSET METADATA
Title:
South Bend Remedy Company Building
National Register Information System ID:
01000993
Applicable Criteria:
ARCHITECTURE/ENGINEERING
Architectural Styles:
CLASSICAL REVIVAL
QUEEN ANNE
Areas Of Significance:
ARCHITECTURE
Periods Of Significance:
1875-1899
Significant Years:
1895
Resource Type:
BUILDING
Related Collections:
National Register of Historic Places Collection
Resource Format:
pdf
File Size (bytes):
405840
Date Published:
9/16/2001
Parks:
National Register of Historic Places
Locations:
State: Indiana
County: St. Joseph County
South Bend ; 501 W. Colfax
Rating:
Categories:
Historic
Asset ID:
ce37525c-9f05-4113-b884-dd3f1f07e68a
Related Portals:
National Register of Historic Places
HIDE METADATA
Copyright