National Park Service
Search NPGallery
Search NPGallery
Explore NPS.gov
×
Copyright Information:
NATIONAL REGISTER DIGITAL ASSETS
DOWNLOAD THIS PDF
DOWNLOAD THIS PDF
HIDE NATIONAL REGISTER ASSETS
Copyright
ASSET METADATA
Title:
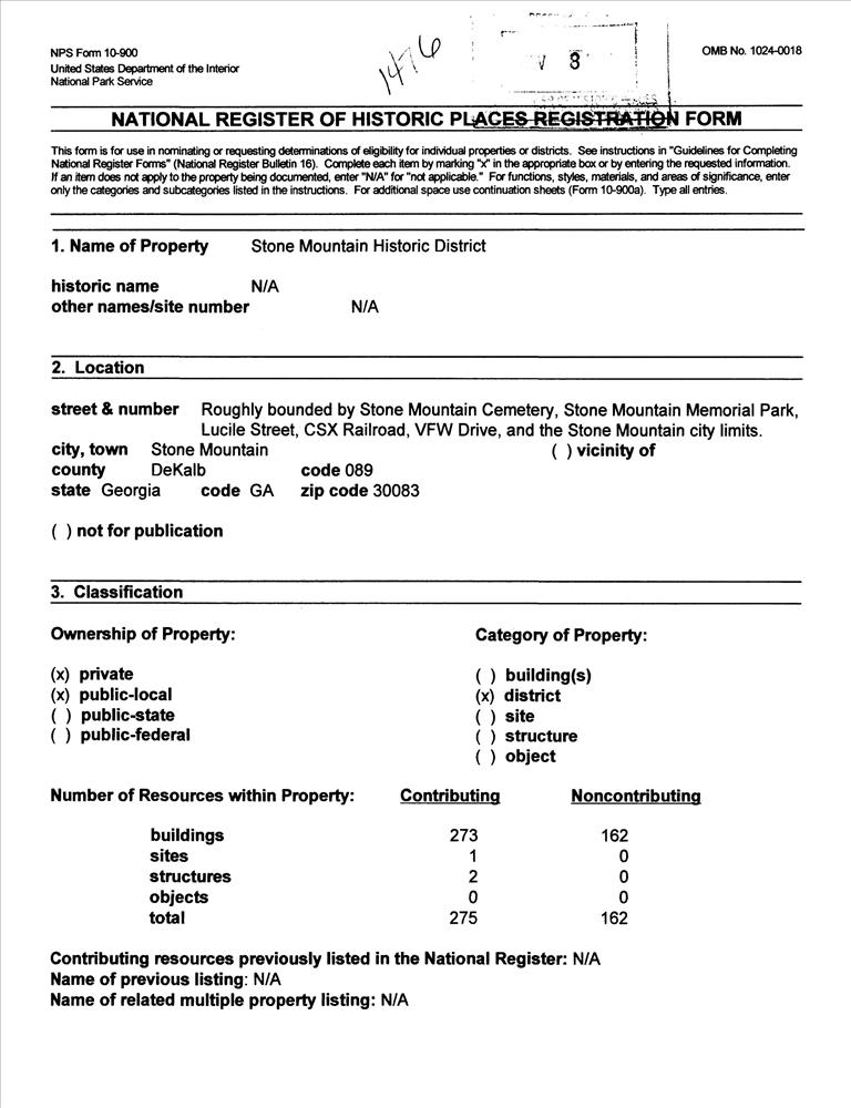
Stone Mountain Historic District
National Register Information System ID:
00001476
Applicable Criteria:
EVENT
ARCHITECTURE/ENGINEERING
Architectural Styles:
GREEK REVIVAL
COLONIAL REVIVAL
Architects:
Barili and Humphreys
Wilson, J.A.
Areas Of Significance:
ARCHITECTURE
COMMERCE
COMMUNITY PLANNING AND DEVELOPMENT
BLACK
ENTERTAINMENT/RECREATION
TRANSPORTATION
Periods Of Significance:
1825-1849
1850-1874
1875-1899
1900-1924
1925-1949
1950-1974
Significant Years:
1836
1845
Resource Type:
DISTRICT
Related Collections:
National Register of Historic Places Collection
Resource Format:
pdf
File Size (bytes):
5899871
Date Published:
12/7/2000
Parks:
National Register of Historic Places
Locations:
State: Georgia
County: DeKalb County
Stone Mountain ; Roughly bounded by Stone Mountain Cemetery, Stone Mountain Memorial Park, Lucie St. CSX RR, VFW Dr., and Stone Mtn City
Rating:
Categories:
Historic
Asset ID:
ef633414-5c94-45eb-9f31-e33aff2c8583
Related Portals:
National Register of Historic Places
HIDE METADATA
Copyright
NATIONAL REGISTER DIGITAL ASSETS
DOWNLOAD THIS PDF
DOWNLOAD THIS PDF
HIDE NATIONAL REGISTER ASSETS
Copyright
ASSET METADATA
Title:
Stone Mountain Historic District
National Register Information System ID:
00001476
Applicable Criteria:
EVENT
ARCHITECTURE/ENGINEERING
Architectural Styles:
GREEK REVIVAL
COLONIAL REVIVAL
Architects:
Barili and Humphreys
Wilson, J.A.
Areas Of Significance:
ARCHITECTURE
COMMERCE
COMMUNITY PLANNING AND DEVELOPMENT
BLACK
ENTERTAINMENT/RECREATION
TRANSPORTATION
Periods Of Significance:
1825-1849
1850-1874
1875-1899
1900-1924
1925-1949
1950-1974
Significant Years:
1836
1845
Resource Type:
DISTRICT
Related Collections:
National Register of Historic Places Collection
Resource Format:
pdf
File Size (bytes):
15386662
Date Published:
12/7/2000
Parks:
National Register of Historic Places
Locations:
State: Georgia
County: DeKalb County
Stone Mountain ; Roughly bounded by Stone Mountain Cemetery, Stone Mountain Memorial Park, Lucie St. CSX RR, VFW Dr., and Stone Mtn City
Rating:
Categories:
Historic
Asset ID:
fe24ace1-1755-429e-aca8-2b5427a19fd7
Related Portals:
National Register of Historic Places
HIDE METADATA
Copyright