Select Item below to DOWNLOAD - Once item is selected, right click and choose 'save as'
5ddb8619-2a78-4df4-9a9f-8e3b1009f4db
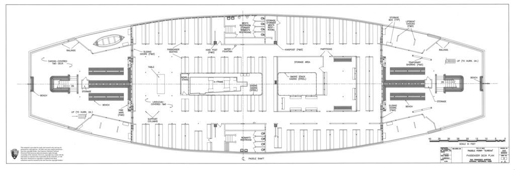
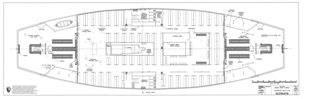
Side-wheel ferry Eureka
Side-wheel ferry Eureka plans package
Sidewheel ferry Eureka plans package
Ferry Eureka plans package
Eureka plans package
Plans package dated 1922-1996 for the 1890 side-wheel ferry Eureka.
U.S. National Park Service, San Francisco Maritime National Historical Park
Some drawings from the Historic American Engineering Record, available online from the Library of Congress' Historic American Buildings Survey/Historic American Engineering Record/Historic American Landscapes Survey site at http://www.loc.gov/pictures/collection/hh/
Permission must be secured from the individual copyright owners to reproduce any copyrighted materials contained within this website. Digital assets without any copyright restrictions are public domain.
Public domain
Ferries, ()
Image
San Francisco Maritime National Historical Park, Code: SAFR
San Francisco Maritime National Historical Park, San Francisco County, California
Latitude: 37.8098983764648, Longitude: -122.421997070313

NPS Museum Number Catalog : SAFR 18765
Local Park number : HDC 555
Legacy NPS Focus Record ID : 478838
Title: Historic American Buildings Survey/Historic American Engineering Record/Historic American Landscapes Survey
URL: http://www.loc.gov/pictures/collection/hh/
01/26/2011
01/01/1890 - 12/31/1995
Image
Source Language: English
Public Can View
Anderson, Richard
Tri-Coastal Marine, Inc.
Heather Hernandez
Thursday, July 26, 2012 12:57:17 PM
Wednesday, August 9, 2017 9:00:47 PM
SAFR-2465a1381d514f258fea01ad889fb99c.tif
XEROX XEROX, WIDE FORMAT
Wednesday, January 26, 2011 10:15:02 PM
tif
1.2 MB
Source: Legacy Focus Resource Type
Content: Drawing
Historic